Wohnimmobilie > Zweifamilienhaus
Zu Verkaufen

Zweifamilienhaus mit weiterer Ausbaumöglichkeit!

61267 Neu-Anspach / Hausen-Arnsbach

495.000 €


11910

1879

192 m²

830 m²

8

Ihr Ansprechpartner bei uns

Gerhard Steinbacher










Sicher!  

Alle Informationen auf einen Blick

  • Charmantes Zweifamilienhaus mit Potenzial – Fachwerkidylle und Ausbaureserve.

    Dieses charmante Zweifamilienhaus mit ehemaliger Gaststätte im Erdgeschoss vereint historischen Charakter mit vielseitigen Nutzungsmöglichkeiten. Das ca. 1879 erbaute Fachwerkhaus bietet ca. 192 m² Wohnfläche und zusätzlich ca. 240 m² Nutzfläche – ideal für Familien, Kapitalanleger oder kreative Wohn- und Arbeitskonzepte.

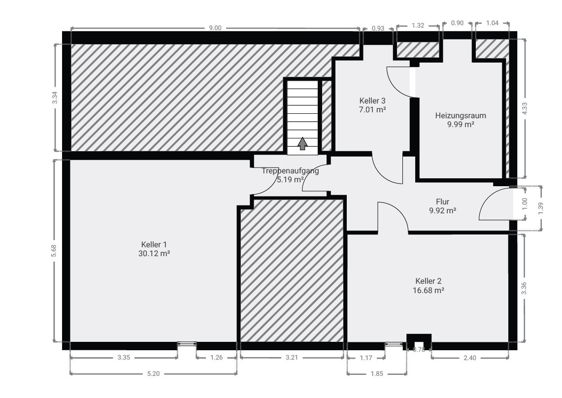
    Das Haus präsentiert sich in einem gepflegten Zustand und verfügt über einen teilunterkellerten Bereich. Auf dem Grundstück befinden sich zudem eine große Scheune sowie ein geschützter Innenhof, der vielfältige Nutzungsmöglichkeiten eröffnet. Für ausreichend Pkw-Stellplätze ist ebenfalls gesorgt.

    Im Erdgeschoss erreichen Sie über den zentralen Eingangsbereich linker Hand eine Einliegerwohnung mit zwei Zimmern, die sich derzeit noch im Renovierungszustand befindet. Rechter Hand liegt der Bereich der ehemaligen Gaststätte, der sich mit einer entsprechenden Nutzungsänderung ebenfalls zu Wohnraum umgestalten lässt. Der Flur führt direkt in den rückwärtig gelegenen Hof.

    Im Obergeschoss erwartet Sie eine großzügige 4-Zimmer-Wohnung mit Terrasse, die sich ideal für eine Familie eignet.

    Das Dachgeschoss bietet zusätzliches Ausbaupotenzial – ideal für weiteren Wohnraum, ein Atelier oder eine Einliegerwohnung. Der großzügige Dachboden eröffnet Ihnen alle Freiheiten zur individuellen Gestaltung.

    Ein Objekt mit Geschichte, Charakter und zahlreichen Möglichkeiten – überzeugen Sie sich selbst von diesem besonderen Anwesen!

  • Flächen

    • Wohnfläche:
      192,29 m²
    • Grundstücksfläche:
      830 m²
    • Nutzfläche:
      240,35 m²
    • Gesamtfläche:
      508,55 m²
    • Wohneinheiten:
      2.00
    • Gewerbeeinheiten:
      1.00
    • Zimmer insgesamt:
      8
    • Schlafzimmer:
      5
    • Badezimmer:
      2
    • Separate WCs:
      2
    • Etagen:
      2
    • Einliegerwohnung:
      ja
    • Stellplätze:
      10
    • Außenstellplätze:
      10
    • Terrassen:
      1

    Zustand & Erschließung

    • Baujahr:
      1879
    • Keller:
      voll unterkellert
    • Heizungsart:
      Zentralheizung
    • Befeuerung:
      Gas
    • Bodenbelag:
      Fliesen
    • Einliegerwohnung
    • Energieausweis gültig bis:
      29.06.2034
    • Primärenergieträger:
      Gas
    • Energieeffizienzklasse:
      F
    • Baujahr (Energieausweis):
      1879
    • Energieausweis-Jahrgang:
      ab Mai 2014
    • Energieausweis-Gebäudeart:
      Wohngebäude

  • Im Hintertaunus gelegen und doch so nah zum Rest der Welt – so kann man Neu-Anspach sehen. Nur auf kurzem Weg über die Saalburg, vorbei am alten Römerkastell nach Bad Homburg, erreicht man nach ca. 35 Kilometern Fahrt Frankfurt. Hier leben viele junge Paare, Familien und Senioren, die genau das und gleichzeitig die Nähe zu den Großstädten schätzen.

    Die A661 ist ca. 13 Kilometer, die A5 ca. 15 Kilometer und der Flughafen Frankfurt ist in ca. 35 Kilometern erreichbar. Über die RMV-Linien 5 (über Friedrichsdorf) und 15 (Taunusbahn) werden die umliegenden Stadtteile und Gemeinden sowie Frankfurt erreicht. Eine Park & Ride Möglichkeit finden Sie direkt am Bahnhof. Auf dem Flugplatz Neu-Anspach können Flugzeuge bis 2.000 kg und Hubschrauber bis 5.700 kg starten und landen.

    Für den „täglichen Bedarf“ finden Sie im Innenstadtbereich und in den Stadtteilen Supermärkte, Apotheken, Restaurants und Gaststätten. Das Einzelhandelsangebot reicht von Bekleidung über Raumbedarf bis hin zu Produkten des regionalen Anbaus.

    Das schulische Angebot beinhaltet zwei Grundschulen und eine Gesamtschule. Vielfältige Kinderbetreuungsangebote können genutzt werden.

    Neu-Anspach ist idealer Ausgangspunkt, um den Taunus zu erkunden. Und das ganz ohne Auto. Sie lieben Aktivitäten rund um Wandern, Radfahren, Joggen, Reiten oder Skilanglauf in einer der schönsten Mittelgebirgsregionen Deutschlands? Sie beginnen hier vor der Haustür. Unerlässlich ist auch ein Besuch im Freilichtmuseum Hessenpark. Original wieder aufgebaute Fachwerkgebäude bieten Einblicke in das Leben und Arbeiten der Menschen der letzten 400 Jahre.

    • Distanz zum Flughafen:
      40,6 km
    • Distanz zum Fernbahnhof:
      0,2 km
    • Distanz zur Autobahn:
      11,9 km
    • Distanz zu U/S-Bahn-Haltestelle:
      19,0 km
    • Distanz zu Bushaltestelle:
      0,1 km
    • Distanz zum Kindergarten:
      0,6 km
    • Distanz zur Grundschule:
      0,5 km
    • Distanz zur Realschule:
      2,3 km
    • Distanz zum Gymnasium:
      2,3 km
    • Distanz zum Zentrum:
      2,0 km
    • Distanz zu Einkaufsmöglichkeiten:
      2,0 km
    • Distanz zu Gaststätten:
      0,3 km
    • Kaufpreis:
      495.000 €
    • Käuferprovision:
      2.95% inkl. MwSt.
    • Hinweis zur Courtage:
      Wir haben einen provisionspflichtigen Maklervertrag mit dem Verkäufer in gleicher Höhe abgeschlossen.
    • MwSt.-Satz:
      19 %

Kein passendes Angebot gefunden?

Registrieren Sie sich in unserer Interessentendatei und geben Sie Ihre Wunschimmobilie an. Wir informieren Sie noch vor Veröffentlichung, sobald wir ein passendes Objekt in unserem Angebot haben.

Bitte aktivieren Sie JavaScript in Ihrem Browser, um dieses Formular fertigzustellen.
1Schritt 1
2Schritt 2
3Schritt 3
Ich interessiere mich für…