Wohnimmobilie > Einfamilienhaus
Zu Verkaufen

Zwei Häuser – ein Grundstück – viele Möglichkeiten/ Charmantes Anwesen in Weibersbrunn

63879 Weibersbrunn

155.000 €


12052

1921

196 m²

220 m²

10

Ihr Ansprechpartner bei uns

Timo Wanik










Sicher!  

Alle Informationen auf einen Blick

  • In idyllischer Lage von Weibersbrunn erwartet Sie ein besonderes Immobilienangebot: Auf einem Grundstück befinden sich zwei Wohnhäuser, die über einen gemeinsamen, überdachten Aufgang erschlossen werden. Dieser Bereich fungiert gleichzeitig als gemütlicher Freisitz – ein geschützter Platz für entspannte Stunden im Freien, unabhängig vom Wetter.

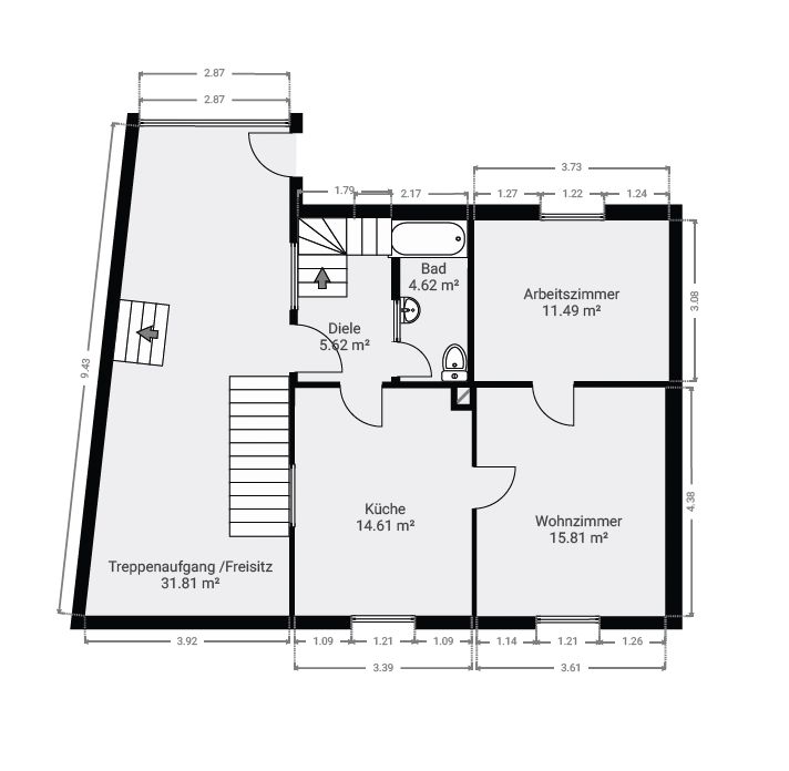
    Haus 1 – Baujahr ca. 1963 – Solide Substanz mit Komfort
    Links vom Aufgang befindet sich das jüngere Wohnhaus aus dem Jahr 1963 mit ca. 111 m² Wohnfläche, verteilt auf 4 Zimmer. Besonders hervorzuheben sind das modernisierte Badezimmer sowie die Einbauküche, die sich in gepflegtem Zustand präsentieren. Dieses Haus eignet sich ideal für Familien oder Paare, die sofort einziehen möchten.

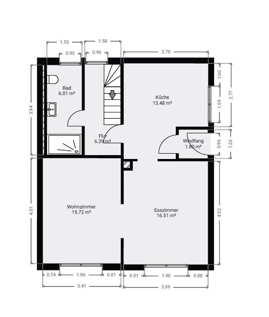
    Haus 2 – Baujahr ca. 1921 – Sanierungsbedürftiges Schmuckstück. Rechts liegt das ältere Haus aus ca. 1912 mit ca. 85 m² Wohnfläche und 3 Zimmern.
    Das Gebäude ist sanierungsbedürftig, bietet jedoch mit seiner charmanten Substanz und dem soliden Grundriss zahlreiche Gestaltungsmöglichkeiten – ideal für handwerklich Begabte oder kreative Investoren.
    Untergeschoss & Technik

    Im Erdgeschoss befinden sich Kellerräume – teils älteren, teils nutzbaren Zustands – in beiden Gebäudeteilen.
    Beheizt wird das Anwesen derzeit über eine Ölheizung.

    Besonderes Highlight:
    Der überdachte Freisitz zwischen den beiden Häusern schafft eine Verbindung und bietet eine geschützte Outdoor-Fläche – sei es als gemeinschaftlicher Treffpunkt, Ruhezone oder Sommer-Essplatz.

    Wichtig zu wissen:
    Beide Häuser befinden sich in einem sanierungsbedürftigen Zustand – genau dieser Umstand verleiht dem Anwesen seinen besonderen Charme. Der Kaufpreis wurde bewusst entsprechend festgelegt, um zukünftigen Eigentümern den notwendigen Spielraum für individuelle Modernisierungen zu ermöglichen.

  • Flächen

    • Wohnfläche:
      196 m²
    • Grundstücksfläche:
      220 m²
    • Nutzfläche:
      151 m²
    • Zimmer insgesamt:
      10
    • Schlafzimmer:
      5
    • Badezimmer:
      2
    • Terrassen:
      1

    Zustand & Erschließung

    • Baujahr:
      1921
    • Zustand:
      sanierungsbedürftig
    • Energieausweis-Art:
      Bedarf
    • Energieausweis gültig bis:
      01.07.2035
    • Endenergiebedarf:
      275,20 kWh/(m²*a)
    • Primärenergieträger:
      Öl
    • Energieeffizienzklasse:
      H
    • Baujahr (Energieausweis):
      1921
    • Energieausweis-Jahrgang:
      ab Mai 2014
    • Energieausweis-Gebäudeart:
      Wohngebäude

  • Weibersbrunn liegt idyllisch im Spessart und bietet naturnahes Wohnen mit guter Anbindung. Die A3 ist in wenigen Minuten erreichbar, Aschaffenburg liegt ca. 20 Minuten entfernt, Frankfurt rund 45 Minuten.

    Vor Ort gibt es einen Kindergarten sowie eine Grundschule, Einkaufsmöglichkeiten für den täglichen Bedarf, Gastronomie und eine funktionierende ärztliche Grundversorgung. Die Umgebung bietet zahlreiche Freizeitmöglichkeiten: Wandern, Radfahren, Wintersport im Spessart oder die Nutzung lokaler Sportvereine – perfekt für Familien, Naturliebhaber und Ruhesuchende.

    • Kaufpreis:
      155.000 €
    • Käuferprovision:
      3,57% inkl. MwSt.
    • Hinweis zur Courtage:
      Wir haben einen provisionspflichtigen Maklervertrag mit dem Verkäufer in gleicher Höhe abgeschlossen.
    • MwSt.-Satz:
      19 %

Kein passendes Angebot gefunden?

Registrieren Sie sich in unserer Interessentendatei und geben Sie Ihre Wunschimmobilie an. Wir informieren Sie noch vor Veröffentlichung, sobald wir ein passendes Objekt in unserem Angebot haben.

Bitte aktivieren Sie JavaScript in Ihrem Browser, um dieses Formular fertigzustellen.
1Schritt 1
2Schritt 2
3Schritt 3
Ich interessiere mich für…