Wohnimmobilie > Einfamilienhaus
Zu Verkaufen

Wunderschönes Altstadthaus zentral, idyllisch und mit außergewöhnlich viel Platz

61350 Bad Homburg vor der Höhe

895.000 €


12188

1900

212 m²

370 m²

6

Ihr Ansprechpartner bei uns

Marc Völker










Sicher!  

Alle Informationen auf einen Blick

  • Dieses wunderbare Altstadthaus vereint historischen Charme mit modernem Wohnkomfort – und das in einer zentralen, zugleich idyllischen Lage. Ein solches Raumangebot ist in dieser Umgebung eine echte Rarität.

    Das Anwesen präsentiert sich äußerst gepflegt – Haus und Grundstück wurden fortlaufend instand gehalten und regelmäßig saniert. Auf rund 212 m² Wohnfläche, verteilt über drei Etagen, bietet das Haus großzügigen Raum für individuelles Wohnen und Arbeiten. Hinzu kommen 127 m² Nutzfläche, die vielfältige Nutzungsmöglichkeiten eröffnen.

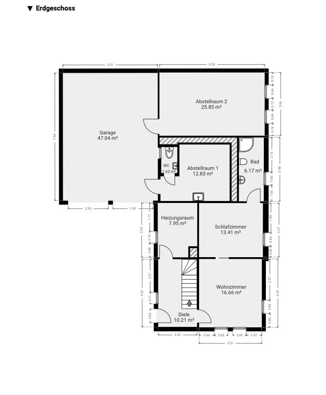
    Im Erdgeschoss befinden sich ein einladender Eingangsbereich, zwei Durchgangszimmer, ein helles Tageslichtbad sowie ein praktischer Hauswirtschaftsraum.

    Das Obergeschoss überzeugt mit einem großzügigen Wohn- und Essbereich, von dem aus Sie Zugang zur riesigen Dachterrasse haben – ein absolutes Highlight! Hier genießen Sie Sonne, Ruhe und einen herrlichen Blick auf die schöne St. Johannes-Kirche – ideal zum Entspannen oder Grillen an warmen Tagen. Zudem finden Sie auf dieser Etage eine gemütliche Küche, zwei weitere Zimmer, die sich flexibel als Schlaf- oder Arbeitszimmer nutzen lassen, sowie ein weiteres Tageslichtbad.

    Im Dachgeschoss stehen zwei bis drei helle Zimmer sowie ein weiteres Badezimmer mit Tageslicht zur Verfügung – perfekt für Gäste, Kinder oder als Rückzugsort.
    Der große Innenhof bietet reichlich Platz – ob für Fahrzeuge, Feste oder Freizeitaktivitäten. Ein Carport für zwei Autos rundet das attraktive Gesamtbild dieses besonderen Anwesens ab.

  • Flächen

    • Wohnfläche:
      212 m²
    • Grundstücksfläche:
      370 m²
    • Nutzfläche:
      127 m²
    • Wohneinheiten:
      1.00
    • Zimmer insgesamt:
      6
    • Badezimmer:
      3
    • Separate WCs:
      1
    • Etagen:
      3
    • Stellplätze:
      6
    • Carport-Stellplätze:
      2
    • Außenstellplätze:
      4
    • Terrassen:
      1

    Zustand & Erschließung

    • Baujahr:
      1900
    • Zustand:
      gepflegt
    • Keller:
      teilweise unterkellert
    • Heizungsart:
      Zentralheizung
    • Befeuerung:
      Gas
    • Badausstattung:
      Fenster
    • Kabel/Sat-TV
    • Energieausweis-Art:
      Bedarf
    • Energieausweis gültig bis:
      08.10.2035
    • Endenergiebedarf:
      203,10 kWh/(m²*a)
    • Primärenergieträger:
      Gas
    • Energieeffizienzklasse:
      G
    • Baujahr (Energieausweis):
      1900
    • Energieausweis-Jahrgang:
      ab Mai 2014
    • Energieausweis-Gebäudeart:
      Wohngebäude

  • Bad Homburg ist als moderner Wirtschaftsstandort und begehrter Wohnort das Zentrum des Hochtaunuskreises. Die Stadt wirbt nicht ohne Grund mit dem Slogan „Champagnerluft und Tradition“ – ein Hinweis auf das exklusive Flair, das Bad Homburg auszeichnet. Zahlreiche Kur-, Kongress- und Tagungseinrichtungen unterstreichen den hohen Stellenwert der Stadt, während das traditionsreiche Casino, oft als „Mutter von Monte Carlo“ bezeichnet, ein besonderes kulturelles Highlight darstellt.

    Die Kreisstadt grenzt südöstlich an Frankfurt am Main und liegt malerisch am Fuße des Saalburgpasses. Die hervorragende Verkehrsanbindung über die Autobahnen A661 und A5 gewährleistet eine schnelle Erreichbarkeit der gesamten Rhein-Main-Region. Darüber hinaus bieten die RMV-Linien U2 und S5, die Taunusbahn sowie zahlreiche Regionalbusverbindungen eine komfortable Anbindung an alle Stadtteile, das Umland und die Frankfurter Innenstadt. Park & Ride-Möglichkeiten stehen direkt an den Bahnhöfen zur Verfügung.

    Für den täglichen Bedarf finden sich sowohl in der Innenstadt als auch in den Stadtteilen zahlreiche Supermärkte, Apotheken, Restaurants und Cafés. Das Einzelhandelsangebot reicht von Mode und Wohnbedarf bis hin zu regionalen Produkten aus heimischem Anbau.
    Das Bildungsangebot in Bad Homburg ist vielfältig und hochwertig: Neben Grundschulen und Gymnasien gibt es ein internationales zweisprachiges Gymnasium sowie eine private Wirtschaftsschule. Ergänzt wird dies durch ein breites Spektrum an Kinderbetreuungsmöglichkeiten.

    Auch für die Freizeitgestaltung bietet Bad Homburg beste Voraussetzungen. Ob Naturerlebnis direkt vor der Haustür oder ein reichhaltiges Angebot an Sport-, Kunst- und Kulturvereinen – hier ist für jeden Geschmack etwas dabei. Ergänzt wird das Angebot durch eine Volkshochschule, Musikschule, mehrere Museen (u. a. das Horex-Museum und das Sinclair-Haus) sowie verschiedene Galerien.

    • Distanz zum Flughafen:
      26,0 km
    • Distanz zum Fernbahnhof:
      2,4 km
    • Distanz zur Autobahn:
      3,4 km
    • Distanz zu U/S-Bahn-Haltestelle:
      5,6 km
    • Distanz zu Bushaltestelle:
      0,2 km
    • Distanz zum Kindergarten:
      0,4 km
    • Distanz zur Grundschule:
      0,5 km
    • Distanz zur Hauptschule:
      1,5 km
    • Distanz zur Realschule:
      1,5 km
    • Distanz zum Gymnasium:
      1,5 km
    • Distanz zum Zentrum:
      2,2 km
    • Distanz zu Einkaufsmöglichkeiten:
      1,6 km
    • Distanz zu Gaststätten:
      0,1 km
    • Kaufpreis:
      895.000 €
    • Käuferprovision:
      3,57% inkl. MwSt.
    • Hinweis zur Courtage:
      Wir haben einen provisionspflichtigen Maklervertrag mit dem Verkäufer in gleicher Höhe abgeschlossen.
    • MwSt.-Satz:
      19 %

Kein passendes Angebot gefunden?

Registrieren Sie sich in unserer Interessentendatei und geben Sie Ihre Wunschimmobilie an. Wir informieren Sie noch vor Veröffentlichung, sobald wir ein passendes Objekt in unserem Angebot haben.

Bitte aktivieren Sie JavaScript in Ihrem Browser, um dieses Formular fertigzustellen.
1Schritt 1
2Schritt 2
3Schritt 3
Ich interessiere mich für…