Wohnimmobilie > Einfamilienhaus
Zu Verkaufen

Seltenes Schmuckstück mit Charme und Geschichte – zentrales Ein- oder Zweifamilienhaus mit Garten

61476 Kronberg im Taunus

495.000 €


12226

1900

197 m²

381 m²

10

Ihr Ansprechpartner bei uns

Marc Völker










Sicher!  

Alle Informationen auf einen Blick

  • Willkommen in Ihrem neuen Zuhause – ein Ort voller Charakter, Geschichte und Geborgenheit!

    Dieses außergewöhnliche Ein- bzw. Zweifamilienhaus aus ca. 1900 begeistert mit seinem unverwechselbaren Fachwerk-Charme, einer zentralen und beliebten Lage sowie einem liebevoll angelegten Grundstück von 381 m² – eine echte Rarität in dieser Umgebung.

    Mit einer großzügigen Wohnfläche von rund 197 m² und zusätzlichen 103 m² Nutzfläche bietet die Immobilie vielseitige Nutzungsmöglichkeiten – ob als großzügiges Einfamilienhaus oder getrenntes Zweifamilienhaus mit zwei Wohneinheiten. Der im Jahr 1969 errichtete Anbau fügt sich harmonisch in das ursprüngliche Gebäude ein und sorgt für eine gelungene Verbindung aus historischem Charme und funktionaler Raumaufteilung.

    Highlights des Hauses
    •Baujahr ca. 1900 – teils Fachwerk mit unverwechselbarem Charakter
    •Erweiterung im Jahr 1969
    •Nutzung als Einfamilien- oder Zweifamilienhaus möglich
    •Großzügige Wohnfläche mit flexibler Raumaufteilung über mehrere Etagen
    •Helle, gemütliche Wohnräume mit viel Tageslicht
    •Sonnige Terrasse und pflegeleichter Garten für entspannte Stunden im Freien
    •Balkon im Obergeschoss mit schönem Ausblick
    •Mehrere Schlaf-, Arbeits- und Aufenthaltsräume – ideal für Familien, Mehrgenerationen oder Homeoffice
    •Nutzfläche ca. 103 m² im Keller und Dachboden – perfekt für Stauraum, Hobby oder Ausbauideen
    •Zentrale und begehrte Wohnlage mit hervorragender Infrastruktur

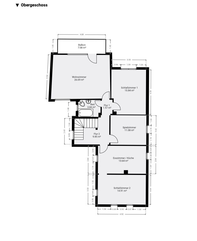
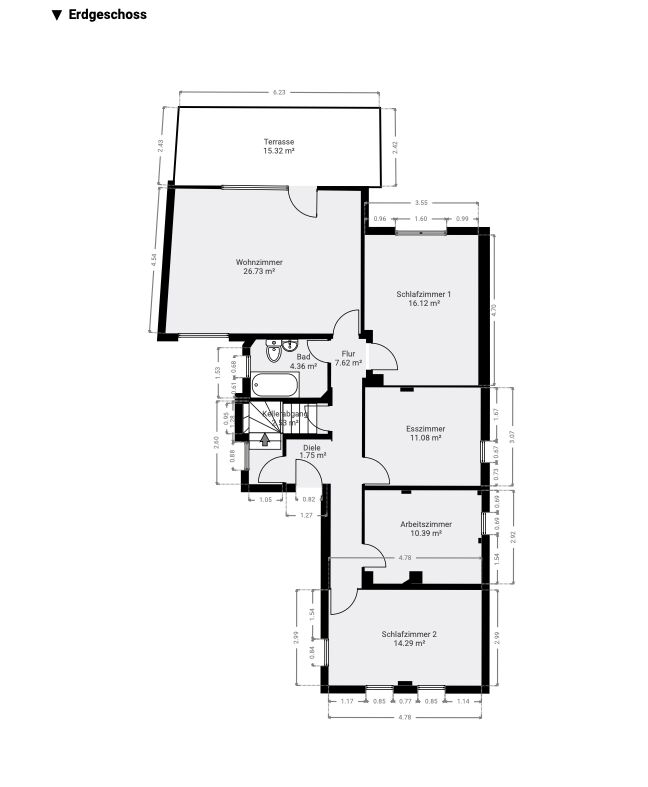
    Raumaufteilung
    Erdgeschoss: Wohnzimmer mit Terrassenzugang, Schlafzimmer, Esszimmer, Arbeitszimmer, Bad und Flur
    Obergeschoss: Zweites Wohnzimmer mit Balkon, zwei Schlafzimmer, Spielzimmer, Küche mit Essbereich
    Dachgeschoss: Drei Dachbodenräume mit zusätzlichem Ausbaupotenzial
    Kellergeschoss: Zwei Kellerräume, Heizungsraum und Flur

    Der idyllische Garten lädt zum Entspannen ein und bietet zugleich genug Platz für Kinder, Haustiere oder gesellige Sommerabende.

  • Flächen

    • Wohnfläche:
      197 m²
    • Grundstücksfläche:
      381 m²
    • Nutzfläche:
      103 m²
    • Wohneinheiten:
      2.00
    • Zimmer insgesamt:
      10
    • Badezimmer:
      2
    • Etagen:
      2
    • Einliegerwohnung:
      ja
    • Stellplätze:
      2
    • Außenstellplätze:
      2
    • Balkone:
      1
    • Terrassen:
      1

    Zustand & Erschließung

    • Baujahr:
      1900
    • Zustand:
      renovierungsbedürftig
    • Keller:
      voll unterkellert
    • Heizungsart:
      Zentralheizung
    • Befeuerung:
      Gas
    • Badausstattung:
      Fenster
    • Einliegerwohnung
    • Energieausweis-Art:
      Bedarf
    • Energieausweis gültig bis:
      02.11.2035
    • Endenergiebedarf:
      261,40 kWh/(m²*a)
    • Primärenergieträger:
      Gas
    • Energieeffizienzklasse:
      H
    • Baujahr (Energieausweis):
      1900
    • Energieausweis-Jahrgang:
      ab Mai 2014
    • Energieausweis-Gebäudeart:
      Wohngebäude

  • Kronberg im Taunus zählt zu den begehrtesten Wohnlagen der Rhein-Main-Region. Die Stadt vereint historischen Charme, naturnahes Wohnen und urbane Lebensqualität auf besondere Weise.

    Die imposante Burg Kronberg, die malerische Altstadt mit ihren liebevoll restaurierten Fachwerkhäusern sowie die herrschaftlichen Villen und Sommerresidenzen aus der Zeit der Jahrhundertwende prägen bis heute das unverwechselbare Stadtbild. Umgeben von grünen Parkanlagen und der reizvollen Landschaft des Taunus entsteht hier eine Atmosphäre, in der sich Tradition und Moderne harmonisch verbinden.

    Kronberg ist verkehrsgünstig angebunden: Über die B455 erreichen Sie schnell die A661 und A66, der Flughafen Frankfurt liegt nur etwa 25 Kilometer entfernt. Die S-Bahn-Linie S4 bringt Sie bequem nach Frankfurt am Main und in die umliegenden Städte. Eine Park & Ride-Anlage am Bahnhof erleichtert den täglichen Arbeitsweg.
    Für den täglichen Bedarf bietet Kronberg alles, was das Leben angenehm macht – von Supermärkten, Apotheken und Boutiquen bis hin zu Feinkostläden und regionalen Produkten. Zahlreiche Cafés und Restaurants laden zum Verweilen ein und verleihen der Stadt ihre besondere Lebensart.

    Familien profitieren von einem breiten Bildungs- und Betreuungsangebot: Mehrere Kindertagesstätten, Grundschulen und eine Gesamtschule mit gymnasialer Oberstufe gewährleisten kurze Wege und eine ausgezeichnete Versorgung.
    Auch das Freizeit- und Kulturleben kann sich sehen lassen: Der weit über die Region hinaus bekannte Opel-Zoo, vielfältige Vereine, der Kronberger Kulturkreis, die Kunstschule und die Stadtbücherei sorgen für Abwechslung und Inspiration. Für Sportbegeisterte stehen Golfplätze, Tennisanlagen, Reitmöglichkeiten sowie ein weitläufiges Wander- und Radwegenetz zur Verfügung.

    Kronberg im Taunus – ein Ort, an dem Lebensqualität, Natur und Stil zu einem besonderen Wohngefühl verschmelzen.

    • Distanz zum Flughafen:
      19,5 km
    • Distanz zum Fernbahnhof:
      1,5 km
    • Distanz zur Autobahn:
      4,2 km
    • Distanz zu U/S-Bahn-Haltestelle:
      4,0 km
    • Distanz zu Bushaltestelle:
      0,1 km
    • Distanz zum Kindergarten:
      0,5 km
    • Distanz zur Grundschule:
      0,4 km
    • Distanz zur Hauptschule:
      1,3 km
    • Distanz zur Realschule:
      1,3 km
    • Distanz zum Gymnasium:
      1,3 km
    • Distanz zum Zentrum:
      2,6 km
    • Distanz zu Einkaufsmöglichkeiten:
      0,7 km
    • Distanz zu Gaststätten:
      0,5 km
    • Kaufpreis:
      495.000 €
    • Käuferprovision:
      3,57% inkl. MwSt.
    • Hinweis zur Courtage:
      Wir haben einen provisionspflichtigen Maklervertrag mit dem Verkäufer in gleicher Höhe abgeschlossen.
    • MwSt.-Satz:
      19 %

Kein passendes Angebot gefunden?

Registrieren Sie sich in unserer Interessentendatei und geben Sie Ihre Wunschimmobilie an. Wir informieren Sie noch vor Veröffentlichung, sobald wir ein passendes Objekt in unserem Angebot haben.

Bitte aktivieren Sie JavaScript in Ihrem Browser, um dieses Formular fertigzustellen.
1Schritt 1
2Schritt 2
3Schritt 3
Ich interessiere mich für…