Wohnimmobilie > Einfamilienhaus
Zu Verkaufen

Kernsanierungsobjekt mit Ausbaupotential oder Abrissgrundstück – entscheiden Sie selbst!

63776 Mömbris / Brücken

250.000 €


11926

1963

212 m²

872 m²

9

Ihr Ansprechpartner bei uns

Dominik Hirschland










Sicher!  

Alle Informationen auf einen Blick

  • Hier sind echte Profis gefragt, die einen Sinn für Chancen und Gelegenheiten haben und sowohl planerisch, handwerklich als auch finanziell in der Lage sind, solche Projekte umzusetzen.

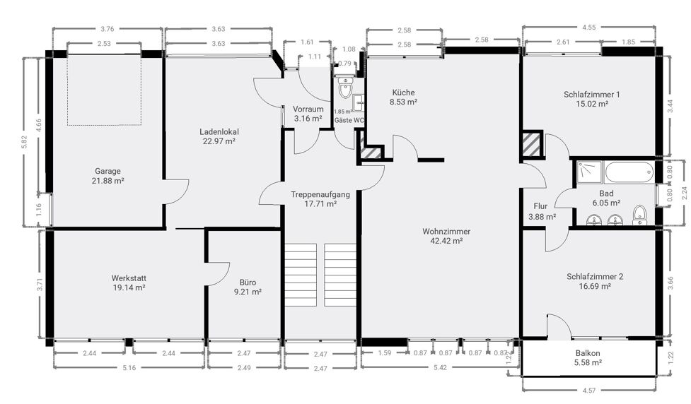
    Diese Liegenschaft wartet nur darauf, gründlich revitalisiert bzw. ausgebaut und entwickelt zu werden. Im EG teilt sich die Fläche in eine 3-Zimmer-Wohnung und ein kleineres Ladengeschäft auf. Hier lässt sich problemlos eine zweite Wohneinheit gestalten, oder – je nach Raumbedarf – kann auch eine gemeinsame sehr großzügige Wohnebene entstehen. Im Gartengeschoss befinden sich durch die Hanglage bedingt sehr helle Räumlichkeiten, die ebenfalls als separate Wohneinheit gestaltbar sind. Ein über die komplette Grundfläche reichender Dachboden bietet weiteres Ausbaupotential. Zwei Garagen und drei Außenstellplätze runden das Angebot ab. Selbstverständlich bedarf es natürlich eine enge Abstimmung mit den zuständigen Behörden.

    Wer sich für die Lage begeistern kann, aber komplett eigene Ideen hat, der kann hier auch über einen Abriss und kompletten Neubau nachdenken. Für beide Varianten gibt es als Schmankerl obendrauf eine direkt angrenzende Landwirtschaftsfläche/Wiese mit einer Größe von weiteren 2279 m², die das Gefühl von Platz und Freiheit vermitteln.

    Gerne stehen wir Ihnen vor Ort mit Rat und Tat zur Seite.

  • Flächen

    • Wohnfläche:
      212 m²
    • Grundstücksfläche:
      872 m²
    • Nutzfläche:
      104 m²
    • Gesamtfläche:
      358 m²
    • Wohneinheiten:
      1.00
    • Gewerbeeinheiten:
      1.00
    • Zimmer insgesamt:
      9
    • Schlafzimmer:
      5
    • Badezimmer:
      2
    • Separate WCs:
      1
    • Etagen:
      1
    • Stellplätze:
      5
    • Außenstellplätze:
      3
    • Garagenstellplätze:
      2

    Zustand & Erschließung

    • Baujahr:
      1963
    • Bauweise:
      Massiv
    • Keller:
      voll unterkellert
    • Heizungsart:
      Zentralheizung
    • Befeuerung:
      Öl
    • Energieausweis-Art:
      Bedarf
    • Energieausweis gültig bis:
      25.09.2035
    • Endenergiebedarf:
      259,80 kWh/(m²*a)
    • Primärenergieträger:
      Öl
    • Energieeffizienzklasse:
      H
    • Baujahr (Energieausweis):
      1963
    • Energieausweis-Jahrgang:
      ab Mai 2014
    • Energieausweis-Gebäudeart:
      Wohngebäude

  • Mömbris liegt idyllisch im Kahlgrund, umgeben von sanften Hügeln und viel Natur – ideal für alle, die das ruhige Wohnen im Grünen schätzen, aber auf eine gute Anbindung nicht verzichten möchten. Die Gemeinde gehört zum Landkreis Aschaffenburg und ist über die B276 sowie die nahe A45 gut erreichbar. Die Fahrzeit nach Aschaffenburg beträgt rund 15 Minuten, Frankfurt am Main ist in ca. 40 Minuten erreichbar.

    Vor Ort gibt es mehrere Kindergärten, eine Grund- und Mittelschule, Einkaufsmöglichkeiten für den täglichen Bedarf und eine gute ärztliche Versorgung. Die Umgebung bietet zahlreiche Freizeitmöglichkeiten, darunter Wanderwege, Radstrecken, Vereine und ein reges Gemeindeleben – besonders geeignet für Familien und alle, die naturnah wohnen möchten.

    • Kaufpreis:
      250.000 €
    • Hinweis zur Courtage:
      Keine zusätzliche Käuferprovision.
    • MwSt.-Satz:
      19 %

Kein passendes Angebot gefunden?

Registrieren Sie sich in unserer Interessentendatei und geben Sie Ihre Wunschimmobilie an. Wir informieren Sie noch vor Veröffentlichung, sobald wir ein passendes Objekt in unserem Angebot haben.

Bitte aktivieren Sie JavaScript in Ihrem Browser, um dieses Formular fertigzustellen.
1Schritt 1
2Schritt 2
3Schritt 3
Ich interessiere mich für…