Wohnimmobilie > Einfamilienhaus
Zu Verkaufen

Großzügiges Einfamilienhaus auf weitläufigem Grundstück – Potenzial für weitere Bebauung

63796 Kahl am Main

639.000 €


12145

1966

183 m²

908 m²

6

Ihre Ansprechpartnerin bei uns

Janina Geis










Sicher!  

Alle Informationen auf einen Blick

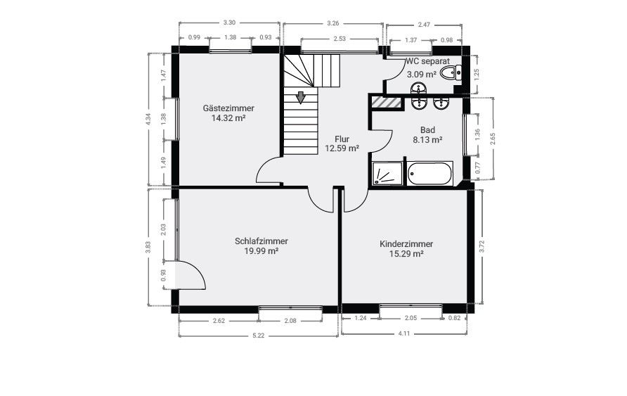
  • Willkommen in Ihrem neuen Zuhause: Dieses freistehende Einfamilienhaus in ruhiger und begehrter Wohnlage von Kahl am Main vereint großzügiges Wohnen mit einem weitläufigen Grundstück und durchdachter Aufteilung. Auf einer Wohnfläche von ca. 182,64 m² bietet das Haus insgesamt 6 Zimmer, die sich flexibel als Wohn-, Schlaf-, Arbeits- oder Kinderzimmer nutzen lassen – ideal für Familien oder Paare mit Platzbedarf.

    Das Haus erstreckt sich über zwei Vollgeschosse und einem Dachgeschoss. Dies steht auf einem beeindruckenden Grundstück von 908 m², das viel Raum für Gartenliebhaber, Freizeitgestaltung oder künftige Erweiterungen bietet. Der große Garten lädt zum Entspannen, Spielen und Genießen ein – hier findet jedes Familienmitglied seinen Lieblingsplatz.

    Besonders angenehm ist das Tageslichtbad, das mit seiner natürlichen Belichtung für eine helle und freundliche Atmosphäre sorgt. Zusätzlich stehen zwei Gäste-WCs zur Verfügung, was den Alltag besonders komfortabel macht.

    In den letzten Jahren wurden wichtige Modernisierungen durchgeführt, die das Haus technisch auf einen zeitgemäßen Stand bringen: So wurden im Jahr 2007 alle Kunststoffleitungen erneuert, 2021 eine neue Gastherme installiert und 2017 moderne Kunststofffenster mit Isolierverglasung eingebaut – ein klarer Pluspunkt in Bezug auf Energieeffizienz und Wohnkomfort.

    Ein gemütlicher Kamin sorgt in der kälteren Jahreszeit für wohlige Wärme und eine angenehme Atmosphäre. Zusätzlich steht ein praktischer Carport zur Verfügung, der Ihr Fahrzeug vor Witterung schützt.

    Dieses Einfamilienhaus ist eine seltene Gelegenheit in einer attraktiven Lage – ruhig, familienfreundlich und dennoch gut angebunden. Wer ein Zuhause mit viel Platz und großem Garten sucht, wird hier fündig.

  • Flächen

    • Wohnfläche:
      182,64 m²
    • Grundstücksfläche:
      908 m²
    • Nutzfläche:
      90,91 m²
    • Zimmer insgesamt:
      6
    • Schlafzimmer:
      5
    • Badezimmer:
      2
    • Separate WCs:
      2
    • Etagen:
      2
    • Stellplätze:
      2
    • Garagenstellplätze:
      2
    • Terrassen:
      1

    Zustand & Erschließung

    • Baujahr:
      1966
    • Keller:
      voll unterkellert
    • Heizungsart:
      Zentralheizung
    • Befeuerung:
      Gas
    • Badausstattung:
      Fenster
    • Kamin
    • Energieausweis-Art:
      Bedarf
    • Energieausweis gültig bis:
      01.10.2035
    • Endenergiebedarf:
      196,90 kWh/(m²*a)
    • Primärenergieträger:
      ERDGas_LEICHT
    • Energieeffizienzklasse:
      F
    • Baujahr (Energieausweis):
      1966
    • Energieausweis-Jahrgang:
      ab Mai 2014
    • Energieausweis-Gebäudeart:
      Wohngebäude

  • Die Gemeinde Kahl am Main, liegt im unterfränkischen Landkreis Aschaffenburg, direkt an der bayerisch-hessischen Landesgrenze und nur wenige Kilometer von Hanau sowie dem Rhein-Main-Gebiet entfernt. Die Lage zeichnet sich durch eine ideale Kombination aus naturnahem Wohnen und hervorragender Anbindung an die umliegenden Städte aus. Dank der Nähe zur A45 und A3 sowie der Bahnverbindung über den Regionalbahnhof Kahl sind sowohl Aschaffenburg, Frankfurt am Main als auch Offenbach in kurzer Zeit erreichbar – ein echter Standortvorteil für Pendler und Berufspendler.

    Kahl am Main ist eingebettet in eine attraktive Umgebung mit hohem Freizeitwert. Die zahlreichen Seen, darunter der bekannte Kahler See und das Naherholungsgebiet „Kahler Seenplatte“, bieten vielfältige Möglichkeiten zur Erholung, zum Baden oder für Wassersport. Auch Rad- und Wanderwege entlang des Mains sowie durch die angrenzenden Waldgebiete machen die Region besonders lebens- und liebenswert.

    Die Gemeinde selbst verfügt über eine sehr gute Infrastruktur: Einkaufsmöglichkeiten, Kindergärten, Schulen, Ärzte und gastronomische Angebote sind zahlreich vorhanden und meist fußläufig erreichbar. Kahl vereint die Vorteile eines ruhigen, familienfreundlichen Wohnorts mit der Nähe zu wirtschaftsstarken Zentren – ideal sowohl für Familien als auch für Berufstätige oder Senioren, die Wert auf Lebensqualität und eine gute Anbindung legen.

    • Kaufpreis:
      639.000 €
    • Käuferprovision:
      3,57% inkl. MwSt.
    • Hinweis zur Courtage:
      Wir haben einen provisionspflichtigen Maklervertrag mit dem Verkäufer in gleicher Höhe abgeschlossen.
    • MwSt.-Satz:
      19 %

Kein passendes Angebot gefunden?

Registrieren Sie sich in unserer Interessentendatei und geben Sie Ihre Wunschimmobilie an. Wir informieren Sie noch vor Veröffentlichung, sobald wir ein passendes Objekt in unserem Angebot haben.

Bitte aktivieren Sie JavaScript in Ihrem Browser, um dieses Formular fertigzustellen.
1Schritt 1
2Schritt 2
3Schritt 3
Ich interessiere mich für…