Wohnimmobilie > Einfamilienhaus
Zu Verkaufen

Großzügiges Ein-/Zweifamilienhaus mit Ausbaupotenzial und großem Grundstück

63868 Großwallstadt

349.000 €


12405

1936

161 m²

581 m²

7

Ihre Ansprechpartnerin bei uns

Janina Geis










Sicher!  

Alle Informationen auf einen Blick

  • Dieses großzügige Ein- bis Zweifamilienhaus überzeugt mit viel Platz, flexiblen Nutzungsmöglichkeiten und einem attraktiven Grundstück. Das ursprüngliche Wohnhaus wurde im Jahr 1936 errichtet. 1949 entstand das Nebengebäude, bevor im Juli 1956 die Aufstockung beantragt und realisiert wurde. So präsentiert sich die Immobilie heute mit gewachsener Struktur und vielseitigem Raumangebot.

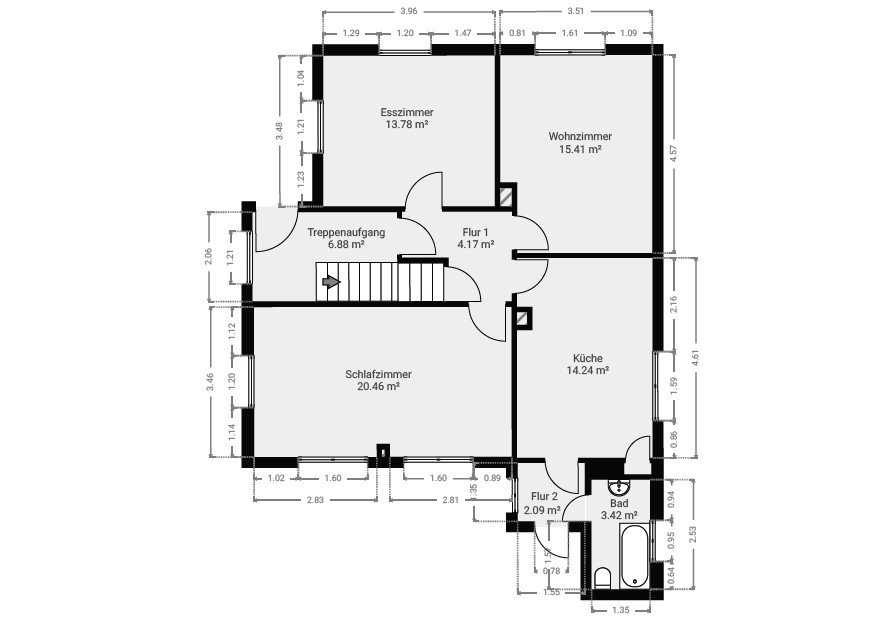
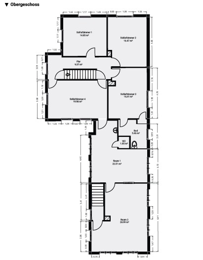
    Auf einer Wohnfläche von ca. 161,34 m² verteilen sich insgesamt 7 Zimmer, darunter 5 Schlafzimmer, die ausreichend Platz für eine große Familie, Mehrgenerationenwohnen oder die Kombination aus Wohnen und Arbeiten bieten.

    Zusätzlich stehen ca. 144,48 m² Nutzfläche sowie weitere 54,04 m² wohnwirtschaftlich ausgebaute Nutzfläche zur Verfügung – ideal als Hobbybereich, Homeoffice, Gästezimmer oder Stauraum.

    Das Haus befindet sich auf einem 581 m² großen Grundstück, das vielfältige Gestaltungsmöglichkeiten eröffnet – ob Gartenparadies, Spielfläche für Kinder oder gemütlicher Rückzugsort im Grünen.

    Ein besonderes Highlight ist der große, nicht ausgebaute Dachboden, der zusätzliches Ausbaupotenzial bietet. Hier können weitere Wohnträume verwirklicht werden – ganz nach Ihren individuellen Vorstellungen.

    Abgerundet wird dieses attraktive Angebot durch eine Garage, mehrere Stellplätze sowie einen Carport, sodass ausreichend Parkmöglichkeiten für Familie und Gäste vorhanden sind.

    Diese Immobilie eignet sich ideal für Familien mit Platzbedarf, Kapitalanleger oder Käufer mit Vision, die den Charme eines gewachsenen Hauses zu schätzen wissen und gleichzeitig ihre eigenen Gestaltungsideen einbringen möchten.

  • Flächen

    • Wohnfläche:
      161,34 m²
    • Grundstücksfläche:
      581 m²
    • Nutzfläche:
      144,48 m²
    • Zimmer insgesamt:
      7
    • Schlafzimmer:
      5
    • Badezimmer:
      2
    • Etagen:
      2
    • Carport-Stellplätze:
      1
    • Außenstellplätze:
      2
    • Garagenstellplätze:
      1

    Zustand & Erschließung

    • Baujahr:
      1936
    • Heizungsart:
      Zentralheizung
    • Befeuerung:
      Öl
    • Energieausweis-Art:
      Bedarf
    • Energieausweis gültig bis:
      29.01.2036
    • Endenergiebedarf:
      219,30 kWh/(m²*a)
    • Primärenergieträger:
      Öl
    • Energieeffizienzklasse:
      G
    • Baujahr (Energieausweis):
      1936
    • Energieausweis-Jahrgang:
      ab Mai 2014
    • Energieausweis-Gebäudeart:
      Wohngebäude

  • Die Immobilie befindet sich in attraktiver Lage von Großwallstadt am Main (PLZ 63868), einer gefragten Wohngemeinde im unterfränkischen Landkreis Miltenberg. Die Gemeinde überzeugt durch ihre ruhige, naturnahe Umgebung sowie eine sehr gute Anbindung an die umliegenden Städte.

    Großwallstadt liegt direkt am Main und bietet einen hohen Freizeit- und Erholungswert. Spazier- und Radwege entlang des Mains, umliegende Felder sowie nahegelegene Waldgebiete schaffen eine hohe Lebensqualität für Naturliebhaber, Familien und Ruhesuchende.

    Die Infrastruktur ist gut ausgebaut: Einkaufsmöglichkeiten für den täglichen Bedarf, Bäckereien, Ärzte, Apotheke, Banken sowie Gastronomie sind im Ort vorhanden. Kindergärten und eine Grundschule befinden sich ebenfalls direkt in Großwallstadt; weiterführende Schulen sind in den umliegenden Städten gut erreichbar.

    Verkehrstechnisch besteht eine gute Anbindung über die Bundesstraße B469 in Richtung Aschaffenburg und Miltenberg. Die Stadt Aschaffenburg ist in ca. 20 Minuten erreichbar und bietet Anschluss an die Autobahn A3 (Frankfurt–Würzburg) sowie an das regionale und überregionale Bahnnetz. Dadurch ist auch der Wirtschaftsraum Rhein-Main schnell erreichbar.

    Insgesamt bietet Großwallstadt eine gelungene Kombination aus naturnahem Wohnen, guter Infrastruktur und verkehrsgünstiger Lage – ideal für Familien, Berufspendler und alle, die die Nähe zur Natur schätzen, ohne auf eine gute Anbindung verzichten zu müssen.

    • Kaufpreis:
      349.000 €
    • Käuferprovision:
      3,57% inkl. MwSt.
    • Hinweis zur Courtage:
      Wir haben einen provisionspflichtigen Maklervertrag mit dem Verkäufer in gleicher Höhe abgeschlossen.
    • MwSt.-Satz:
      19 %

Kein passendes Angebot gefunden?

Registrieren Sie sich in unserer Interessentendatei und geben Sie Ihre Wunschimmobilie an. Wir informieren Sie noch vor Veröffentlichung, sobald wir ein passendes Objekt in unserem Angebot haben.

1Schritt 1
2Schritt 2
3Schritt 3
Ich interessiere mich für…