Wohnimmobilie > Reihenmittelhaus
Zu Verkaufen

Familienfreundliches Reihenmittelhaus in absolut ruhiger Lage von Neu-Anspach!

61267 Neu-Anspach

480.000 €


12323

1980

142 m²

206 m²

5

Ihr Ansprechpartner bei uns

Gerhard Steinbacher










Sicher!  

Alle Informationen auf einen Blick

  • In einer begehrten und äußerst ruhigen Wohnlage von Neu-Anspach befindet sich dieses gepflegte Reihenmittelhaus aus dem Baujahr 1980 – ein ideales Zuhause für Familien, die Wert auf Platz, Ruhe und eine gute Infrastruktur legen.

    Der Eingangsbereich des Hauses bietet ausreichend Platz für eine Garderobe und heißt Sie und Ihre Gäste angenehm willkommen. Von hier aus gelangen Sie in das Gäste-WC sowie in das Treppenhaus. Die angrenzende Küche bietet genügend Raum für eine moderne Einbauküche. Der Wohn- und Essbereich überzeugt durch seine Helligkeit und den direkten Zugang zur Terrasse sowie in den liebevoll angelegten Garten, ein perfekter Ort zum Entspannen, Spielen oder für gesellige Stunden mit Familie und Freunden.

    Im Obergeschoss erwarten Sie drei geräumige und helle Schlafzimmer, die vielseitig als Kinder-, Arbeits- oder Gästezimmer genutzt werden können. Ein komfortables Badezimmer mit Dusche, Badewanne und WC, rundet diese Etage ab.

    Das Dachgeschoss bietet ein großzügiges Dachstudio mit ca. 25 m² Wohnfläche sowie ein weiteres Bad mit Dusche und WC, ideal als Elternbereich, Homeoffice oder Rückzugsort für Teenager.

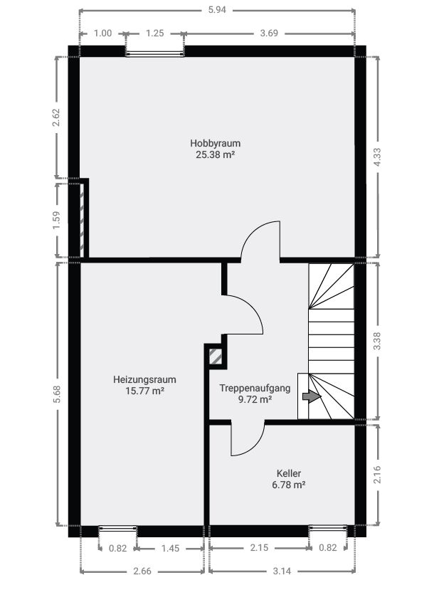
    Zusätzlichen Platz finden Sie im Keller: Hier stehen Ihnen ein ca. 25 m² großer Hobbyraum, der Heizungsraum sowie ein weiterer Abstellraum zur Verfügung.

    Für Ihren Pkw steht ein separater Garagenhof mit einer Einzelgarage zur Verfügung.

    Das Haus eignet sich hervorragend für Familien und bietet sowohl innen als auch außen viel Raum zum Leben und Wohlfühlen. Die Infrastruktur in Neu-Anspach ist ausgezeichnet: Einkaufsmöglichkeiten, Schulen, Kindergärten sowie der Anschluss an die Taunusbahn sind bequem erreichbar.

    Die Fenster und die Hauseingangstür wurden im Jahr 2010 erneuert. Die Fenster bestehen aus Kunststoff und sind mit einer dreifachen Isolierverglasung ausgestattet.

    Ein Zuhause, das Ruhe, Funktionalität und Familienleben perfekt miteinander verbindet.

  • Flächen

    • Wohnfläche:
      141,57 m²
    • Grundstücksfläche:
      206 m²
    • Nutzfläche:
      58,48 m²
    • Wohneinheiten:
      1.00
    • Zimmer insgesamt:
      5
    • Schlafzimmer:
      4
    • Badezimmer:
      2
    • Separate WCs:
      1
    • Etagen:
      2
    • Stellplätze:
      1
    • Garagenstellplätze:
      1
    • Terrassen:
      1

    Zustand & Erschließung

    • Baujahr:
      1980
    • Zustand:
      gepflegt
    • Bauweise:
      Massiv
    • Keller:
      voll unterkellert
    • Heizungsart:
      Zentralheizung
    • Befeuerung:
      Gas
    • Bodenbelag:
      Fliesen, Teppich, Parkett
    • Sauna
    • Energieausweis-Art:
      Verbrauch
    • Energieausweis gültig bis:
      01.08.2035
    • Energieverbrauchskennwert:
      87,90 kWh/(m²*a)
    • Primärenergieträger:
      Gas
    • Energieeffizienzklasse:
      C
    • Baujahr (Energieausweis):
      1980
    • Energieausweis-Jahrgang:
      ab Mai 2014
    • Energieausweis-Gebäudeart:
      Wohngebäude

  • Im Hintertaunus gelegen und doch so nah zum Rest der Welt – so kann man Neu-Anspach sehen. Nur auf kurzem Weg über die Saalburg, vorbei am alten Römerkastell nach Bad Homburg, erreicht man nach ca. 35 Kilometern Fahrt Frankfurt. Hier leben viele junge Paare, Familien und Senioren, die genau das und gleichzeitig die Nähe zu den Großstädten schätzen.

    Die A661 ist ca. 13 Kilometer, die A5 ca. 15 Kilometer und der Flughafen Frankfurt ist in ca. 35 Kilometern erreichbar. Über die RMV-Linien 5 (über Friedrichsdorf) und 15 (Taunusbahn) werden die umliegenden Stadtteile und Gemeinden sowie Frankfurt erreicht. Eine Park & Ride Möglichkeit finden Sie direkt am Bahnhof. Auf dem Flugplatz Neu-Anspach können Flugzeuge bis 2.000 kg und Hubschrauber bis 5.700 kg starten und landen.

    Für den „täglichen Bedarf“ finden Sie im Innenstadtbereich und in den Stadtteilen Supermärkte, Apotheken, Restaurants und Gaststätten. Das Einzelhandelsangebot reicht von Bekleidung über Raumbedarf bis hin zu Produkten des regionalen Anbaus.

    Das schulische Angebot beinhaltet zwei Grundschulen und eine Gesamtschule. Vielfältige Kinderbetreuungsangebote können genutzt werden.

    Neu-Anspach ist idealer Ausgangspunkt, um den Taunus zu erkunden. Und das ganz ohne Auto. Sie lieben Aktivitäten rund um Wandern, Radfahren, Joggen, Reiten oder Skilanglauf in einer der schönsten Mittelgebirgsregionen Deutschlands? Sie beginnen hier vor der Haustür. Unerlässlich ist auch ein Besuch im Freilichtmuseum Hessenpark. Original wieder aufgebaute Fachwerkgebäude bieten Einblicke in das Leben und Arbeiten der Menschen der letzten 400 Jahre.

    • Kaufpreis:
      480.000 €
    • Käuferprovision:
      3,57% inkl. MwSt.
    • Hinweis zur Courtage:
      Wir haben einen provisionspflichtigen Maklervertrag mit dem Verkäufer in gleicher Höhe abgeschlossen.
    • MwSt.-Satz:
      19 %

Kein passendes Angebot gefunden?

Registrieren Sie sich in unserer Interessentendatei und geben Sie Ihre Wunschimmobilie an. Wir informieren Sie noch vor Veröffentlichung, sobald wir ein passendes Objekt in unserem Angebot haben.

Bitte aktivieren Sie JavaScript in Ihrem Browser, um dieses Formular fertigzustellen.
1Schritt 1
2Schritt 2
3Schritt 3
Ich interessiere mich für…