Wohnimmobilie > Einfamilienhaus
Zu Verkaufen

Ein-/Zweifamilienhaus mit Werkstatt und vielseitigen Nutzungsmöglichkeiten

63811 Stockstadt am Main

359.000 €


12351

1951

155 m²

718 m²

6

Ihre Ansprechpartnerin bei uns

Janina Geis










Sicher!  

Alle Informationen auf einen Blick

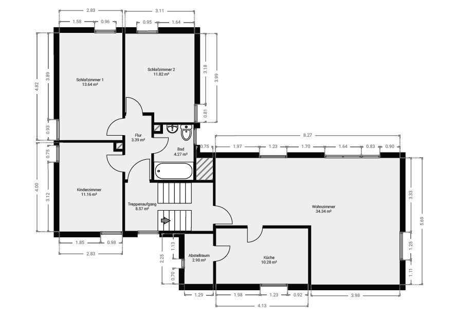
  • Das großzügige freistehende Ein-/Zweifamilienhaus aus dem Jahr 1951, erweitert durch einen Anbau im Jahr 1983, befindet sich auf einem 718 m² großen Grundstück und bietet vielfältige Nutzungsmöglichkeiten – ideal für große Familien, Mehrgenerationenwohnen oder die Kombination aus Wohnen und Hobby.

    Die Wohnfläche von ca. 154,94 m² umfasst insgesamt sieben Schlafzimmer, zwei Küchen sowie zwei Badezimmer. Die Aufteilung ermöglicht sowohl die Nutzung als großzügiges Einfamilienhaus als auch als Zweifamilienhaus mit separaten Bereichen.

    Beheizt wird die Immobilie über eine Gasheizung aus ca. 2013. Zusätzlich stehen ca. 161,20 m² Nutzfläche zur Verfügung und bieten reichlich Stauraum sowie flexible Verwendungsmöglichkeiten.

    Ein besonderes Highlight ist die großzügige Werkstatt, die sich ideal für Handwerker, Schrauber oder als Lagerfläche eignet. Das Grundstück ist überwiegend gepflastert und als Hof angelegt – dadurch entsteht viel praktische Fläche, beispielsweise für Fahrzeuge, Abstellmöglichkeiten oder gewerbliche Nutzung. Eine große Garage sowie weitere Stellmöglichkeiten bieten ausreichend Platz für mehrere Autos, Anhänger oder Transporter.

    Diese Immobilie überzeugt vor allem durch ihr Platzangebot und ihre vielseitigen Nutzungsmöglichkeiten – ideal für alle, die Raum und Flexibilität schätzen.

  • Flächen

    • Wohnfläche:
      154,94 m²
    • Grundstücksfläche:
      718 m²
    • Nutzfläche:
      161,2 m²
    • Zimmer insgesamt:
      6
    • Schlafzimmer:
      5
    • Badezimmer:
      2
    • Separate WCs:
      1
    • Etagen:
      2
    • Stellplätze:
      5
    • Garagenstellplätze:
      5

    Zustand & Erschließung

    • Baujahr:
      1951
    • Keller:
      voll unterkellert
    • Heizungsart:
      Zentralheizung
    • Befeuerung:
      Gas
    • Kamin
    • Energieausweis-Art:
      Bedarf
    • Energieausweis gültig bis:
      17.01.2036
    • Endenergiebedarf:
      214,10 kWh/(m²*a)
    • Primärenergieträger:
      ERDGas_LEICHT
    • Energieeffizienzklasse:
      G
    • Baujahr (Energieausweis):
      1951
    • Energieausweis-Jahrgang:
      ab Mai 2014
    • Energieausweis-Gebäudeart:
      Wohngebäude

  • Die Immobilie befindet sich in attraktiver Lage von Stockstadt am Main, einer beliebten Wohngemeinde im unterfränkischen Landkreis Aschaffenburg. Der Ort überzeugt durch seine ruhige, familienfreundliche Struktur und die gleichzeitig hervorragende Anbindung an die umliegenden Städte.

    Stockstadt liegt unmittelbar am Main und profitiert von der Nähe zur Natur sowie von zahlreichen Freizeit- und Erholungsmöglichkeiten entlang des Mains und in den umliegenden Waldgebieten. Spazier- und Radwege, Sportvereine sowie Naherholungsflächen bieten einen hohen Freizeitwert.

    Die Infrastruktur ist sehr gut: Einkaufsmöglichkeiten des täglichen Bedarfs, Bäckereien, Ärzte, Apotheken, Kindergärten sowie eine Grundschule befinden sich direkt im Ort. Weiterführende Schulen sowie ein umfangreiches Einkaufs- und Freizeitangebot stehen im nahegelegenen Aschaffenburg zur Verfügung.

    Verkehrstechnisch ist Stockstadt hervorragend angebunden. Über die Autobahn A3 (Frankfurt–Würzburg) erreichen Sie die Rhein-Main-Region in kurzer Zeit. Der örtliche Bahnhof bietet zudem eine direkte Anbindung an den regionalen Bahnverkehr in Richtung Aschaffenburg und Frankfurt am Main. Der Flughafen Frankfurt am Main ist in etwa 30–40 Minuten erreichbar.

    Die Kombination aus naturnahem Wohnen, guter Infrastruktur und optimaler Verkehrsanbindung macht Stockstadt am Main zu einem besonders attraktiven Wohnstandort – sowohl für Familien als auch für Berufspendler.

    • Kaufpreis:
      359.000 €
    • Käuferprovision:
      3,57% inkl. MwSt.
    • Hinweis zur Courtage:
      Wir haben einen provisionspflichtigen Maklervertrag mit dem Verkäufer in gleicher Höhe abgeschlossen.
    • MwSt.-Satz:
      19 %

Kein passendes Angebot gefunden?

Registrieren Sie sich in unserer Interessentendatei und geben Sie Ihre Wunschimmobilie an. Wir informieren Sie noch vor Veröffentlichung, sobald wir ein passendes Objekt in unserem Angebot haben.

Bitte aktivieren Sie JavaScript in Ihrem Browser, um dieses Formular fertigzustellen.
1Schritt 1
2Schritt 2
3Schritt 3
Ich interessiere mich für…