Mit etwas Renovierungsaufwand lässt sich dieses Haus in ein echtes Schmuckstück verwandeln – und in Ihr neues Zuhause voller Möglichkeiten.
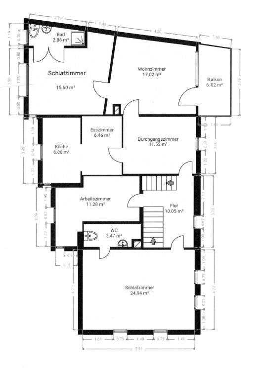
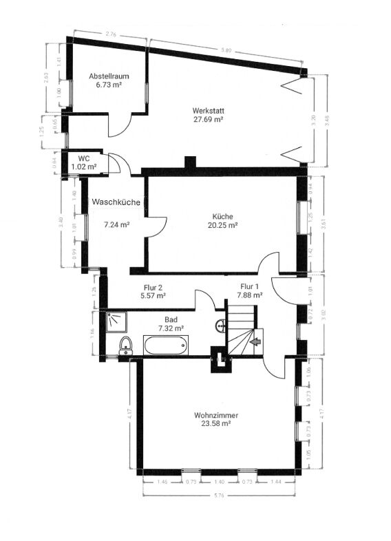
Im Erdgeschoss empfängt Sie über die Eingangstür mit neuem Vordach ein einladender Eingangsbereich mit Flur und ausreichend Platz für eine Garderobe. Von hier aus gelangen Sie in die geräumige Essküche, die den idealen Mittelpunkt für das Familienleben bildet. Das Wohnzimmer mit Kachelofen bietet viel Raum für gemütliche Stunden. Ein Bad mit Dusche und Badewanne steht ebenfalls auf dieser Ebene zur Verfügung. Zusätzlich gibt es ein separates WC.
Über die direkt an der Küche liegende Waschküche erreichen Sie den Anbau, der mit einem Abstellraum, einer Werkstatt oder Garage sowie einem zusätzlichen Raum zum Lagern oder für Hobbyzwecke überzeugt und somit praktischen Stauraum bietet. In diesem Raum befindet sich auch die Heizung.
Im Obergeschoss befindet sich der Zugang zu einer möglichen 2,5-Zimmer-Einliegerwohnung mit Duschbad und Balkon. Diese Einheit eignet sich ideal als Büro oder auch zur Nutzung durch Familienmitglieder. 1 Schlafzimmer mit angeschlossenem WC mit Waschbecken, sowie ein derzeit als Büro genutztes Zimmer.
Das Dachgeschoss rundet das Raumangebot ab: Neben einem Dachboden befinden sich hier zwei wohnraumartig ausgebaute Jugendzimmer, die flexibel als Arbeits-, Gäste- oder Hobbyräume genutzt werden können.
Sie werden von den großzügigen Platzverhältnissen und den vielseitigen Nutzungsmöglichkeiten dieses Einfamilienhauses begeistert sein. Dieses Haus bietet Raum für individuelle Wohnideen und ein komfortables Zuhause in attraktiver Lage.
Besondere Highlights:
Ruhige Lage in Usingen-Eschbach
Eine mögliche 2,5 – Zimmer-Einliegerwohnung mit Duschbad im OG
Die Hauptwohnung mit 5 Zimmern und Tageslichtbad
Teilunterkellert
Vielfältige Nutzungsmöglichkeiten: Wohnen, Arbeiten, Vermietung
Ausbaureserve im Dachgeschoss
Mit etwas Renovierungsaufwand lässt sich dieses Haus in ein echtes Schmuckstück verwandeln!
Usingen liegt inmitten der Urlaubsregion Hochtaunus. Als ehemalige Residenz- und Kreisstadt kann sie auf eine über 1.200-jährige Historie zurückblicken. Die vielen wunderschönen Fachwerkhäuser und historischen Gebäude bieten eine reizvolle Kulisse. Bereits von Weitem ist das Wahrzeichen der Stadt, die Laurentiuskirche zu erkennen.
In ca. 35 Kilometern erreichen Sie Frankfurt. Die A3 und die A5 erreichen Sie in ca. 22 Kilometern, den internationalen Flughafen Frankfurt in ca. 45 Kilometern. Mit den RMV-Linien 5 (über Friedrichsdorf) und 15 (Taunusbahn) erreichen Sie die umliegenden Gemeinden und Frankfurt. Park & Ride Möglichkeiten finden Sie direkt an den Bahnhöfen.
Für den „täglichen Bedarf“ finden Sie im Innenstadtbereich und in den Stadtteilen Supermärkte, Apotheken, Restaurants und Gaststätten. Das Einzelhandelsangebot reicht von Bekleidung über Raumbedarf bis hin zu Produkten des regionalen Anbaus.
In Eschbach direkt finden Sie eine Grundschule, eine Kita, einen Bäcker, einen Metzger. In Usingen beinhaltet das schulische Angebot zwei Grundschulen, eine kooperative Gesamtschule, ein allgemeinbildendes Gymnasium und eine berufliche Schule. Vielfältige Kinderbetreuungsangebote können genutzt werden.
Von Usingen aus sind Sie schnell im Grünen. Eine besondere Attraktion oberhalb des Stadtteils Eschbach sind die Eschbacher Klippen. Schnell zu erreichen sind beispielsweise das Römerkastell Saalburg, der Freizeitpark Lochmühle in Wehrheim oder der Vogelpark Hochtaunus in Weilrod. Aber auch der Feldberg oder die Städte Bad Homburg und Frankfurt sind einen Tagesausflug wert.
Registrieren Sie sich in unserer Interessentendatei und geben Sie Ihre Wunschimmobilie an. Wir informieren Sie noch vor Veröffentlichung, sobald wir ein passendes Objekt in unserem Angebot haben.