Wohnimmobilie > Einfamilienhaus
Zu Verkaufen

EFH in gewachsener und ruhiger Lage, direkt in Wehrheim!

61273 Wehrheim

495.000 €


12255

1963

121 m²

573 m²

4

Ihr Ansprechpartner bei uns

Gerhard Steinbacher










Sicher!  

Alle Informationen auf einen Blick

  • Dieses freistehende Einfamilienhaus befindet sich in einer angenehm ruhigen Wohnlage von Wehrheim. Die Taunusbahn sowie eine Bushaltestelle sind in wenigen Gehminuten erreichbar – ideal für Pendler und Familien.

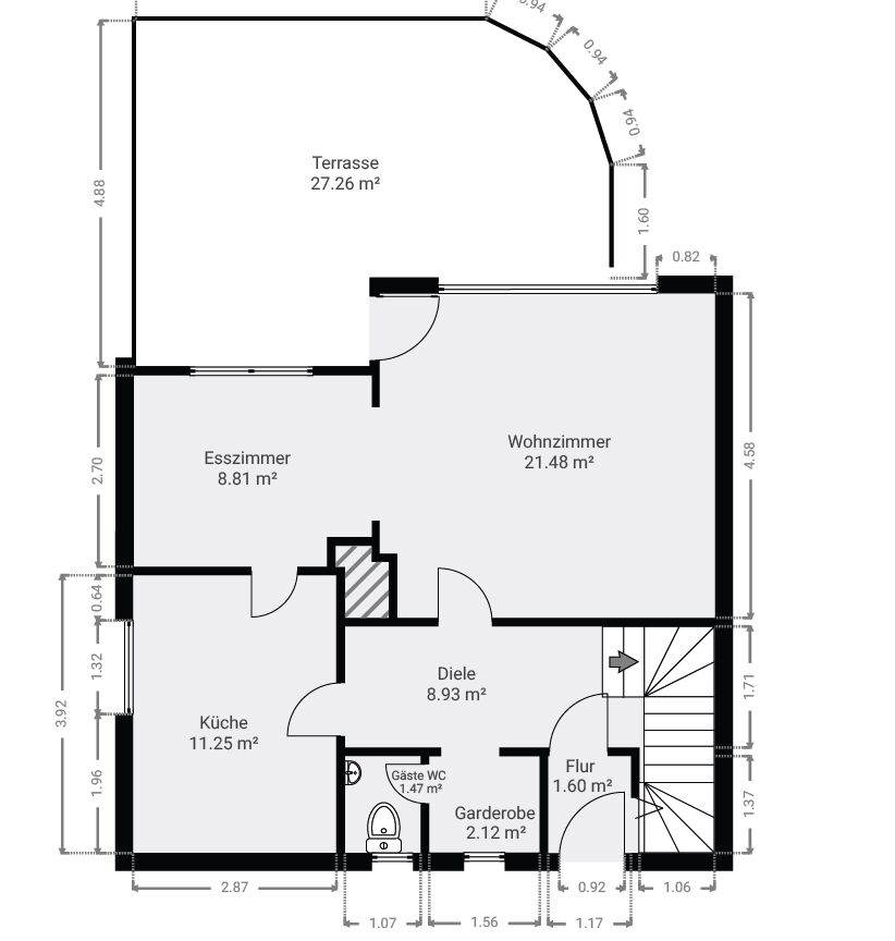
    Im Erdgeschoss empfängt Sie ein freundlicher Eingangsbereich mit Garderobe und Gäste-WC. Die separate Küche bietet ausreichend Platz für eine moderne Einbauküche und ist direkt mit dem Essbereich verbunden. Hier sorgt ein optisch ansprechender Kachelofen, angeschlossen an die vorhandene Warmluftheizung, für ein wohnliches Ambiente. Das angrenzende Wohnzimmer öffnet sich zur Terrasse und dem herrlichen Garten – ein perfekter Ort, um erholsame Stunden mit Familie und Freunden zu genießen.

    Das Obergeschoss verfügt über drei gut geschnittene Schlafzimmer, von denen zwei einen direkten Zugang zum Balkon bieten. Ein Tageslichtbad mit Eckdusche, WC und Waschbecken rundet das Raumangebot auf dieser Etage ab. Im Spitzboden, der über eine Einschubtreppe erreichbar ist, stehen zusätzliche Abstellmöglichkeiten zur Verfügung.

    Das für das Einfamilienhaus vorgesehene Grundstück umfasst ca. 573 m² und wird aus einer Gesamtfläche von 860 m² herausgeteilt. Das Haus ist vollunterkellert und bietet neben einem großzügigen Hobbyraum auch eine vorhandene Sauna sowie weitere nützliche Stauflächen. Eine Kelleraußentreppe ermöglicht den direkten Zugang von außen.

    Aktuell ist im Haus eine Gas-Warmluftheizung mit entsprechenden Warmluftauslässen installiert, die jedoch erneuerungsbedürftig ist. Dies eröffnet dem neuen Eigentümer die Möglichkeit, ein modernes Heizsystem nach eigenen Vorstellungen zu integrieren.

    Dieses Objekt bietet ideale Voraussetzungen für Familien, die ein ruhig gelegenes Zuhause mit viel Platz und Gestaltungspotenzial suchen.

  • Flächen

    • Wohnfläche:
      121,01 m²
    • Grundstücksfläche:
      573 m²
    • Nutzfläche:
      57,69 m²
    • Wohneinheiten:
      1.00
    • Zimmer insgesamt:
      4
    • Schlafzimmer:
      3
    • Badezimmer:
      1
    • Separate WCs:
      1
    • Etagen:
      2
    • Stellplätze:
      3
    • Garagenstellplätze:
      1
    • Parkhaus-Stellplätze:
      2
    • Balkone:
      1
    • Terrassen:
      1

    Zustand & Erschließung

    • Baujahr:
      1963
    • Zustand:
      gepflegt
    • Bauweise:
      Massiv
    • Keller:
      voll unterkellert
    • Heizungsart:
      Zentralheizung
    • Befeuerung:
      Gas
    • Bodenbelag:
      Fliesen, Parkett, Laminat
    • Energieausweis-Art:
      Bedarf
    • Energieausweis gültig bis:
      27.04.2035
    • Endenergiebedarf:
      247,10 kWh/(m²*a)
    • Primärenergieträger:
      Gas
    • Energieeffizienzklasse:
      G
    • Baujahr (Energieausweis):
      1963
    • Energieausweis-Jahrgang:
      ab Mai 2014
    • Energieausweis-Gebäudeart:
      Wohngebäude

  • Das „Apfeldorf“ Wehrheim liegt im Hochtaunuskreis, nördlich von Frankfurt. In allen Ortsteilen gibt es Dorfplätze mit sehr schönen Fachwerkhäusern.

    Anschluss besteht über die B456 zur A661 und A5. Die Taunusbahn verbindet Sie mit dem RMV und damit mit Frankfurt.

    Im gewachsenen Ortskern finden sich gute Einkaufsmöglichkeiten. Die rund 40 landwirtschaftlichen Betriebe vermarkten ihre Produkte oft in Eigenregie.

    Das schulische Angebot bietet eine Grundschule. Weiterführende Schulen finden sich in Usingen und Bad Homburg. Vielfältige Kinderbetreuungsmöglichkeiten können genutzt werden.

    Für Ihre Freizeitgestaltung können Sie wählen zwischen der „Natur vor der Haustür“ und vielfältigen Sport-, Kunst- und Kulturvereinen. Das Freizeitangebot macht Wehrheim zu einer lebens- und liebenswerten Gemeinde.

    • Kaufpreis:
      495.000 €
    • Käuferprovision:
      3,57% inkl. MwSt.
    • Hinweis zur Courtage:
      Wir haben einen provisionspflichtigen Maklervertrag mit dem Verkäufer in gleicher Höhe abgeschlossen.
    • MwSt.-Satz:
      19 %

Kein passendes Angebot gefunden?

Registrieren Sie sich in unserer Interessentendatei und geben Sie Ihre Wunschimmobilie an. Wir informieren Sie noch vor Veröffentlichung, sobald wir ein passendes Objekt in unserem Angebot haben.

Bitte aktivieren Sie JavaScript in Ihrem Browser, um dieses Formular fertigzustellen.
1Schritt 1
2Schritt 2
3Schritt 3
Ich interessiere mich für…