Wohnimmobilie > Einfamilienhaus
Zu Verkaufen

Dieses Eigenheim mit kleiner Einliegerwohnung bietet Ihnen viel Platz!

61267 Neu-Anspach

450.000 €


12408

1959

164 m²

205 m²

6

Ihr Ansprechpartner bei uns

Gerhard Steinbacher










Sicher!  

Alle Informationen auf einen Blick

  • Flexibel nutzbares Einfamilienhaus mit Einliegerwohnung, Dachterrasse und kleinem Garten! Diese interessante Immobilie bietet Ihnen vielfältige Nutzungsmöglichkeiten: Ob als großzügiges Einfamilienhaus oder als Wohnhaus mit separater 2-Zimmer-Einliegerwohnung – hier sind unterschiedliche Lebenskonzepte realisierbar.

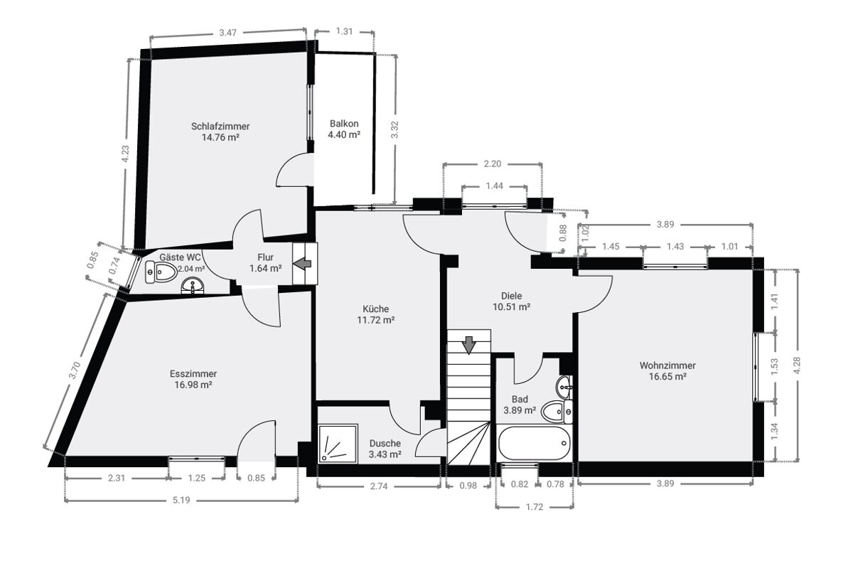
    Bereits beim Betreten des Hauses zeigt sich die durchdachte Aufteilung. Vom Hauseingang aus gelangen Sie geradeaus in die abgeschlossene Einliegerwohnung. Diese verfügt über eine gemütliche Essküche, ein Badezimmer mit Dusche sowie – über wenige weitere Stufen erreichbar – eine separate Toilette. Ein helles Wohnzimmer mit direktem Zugang in den Garten und auf die Terrasse schafft eine angenehme Wohnatmosphäre. Ergänzt wird dieser Bereich durch ein Schlafzimmer mit eigenem Balkon.

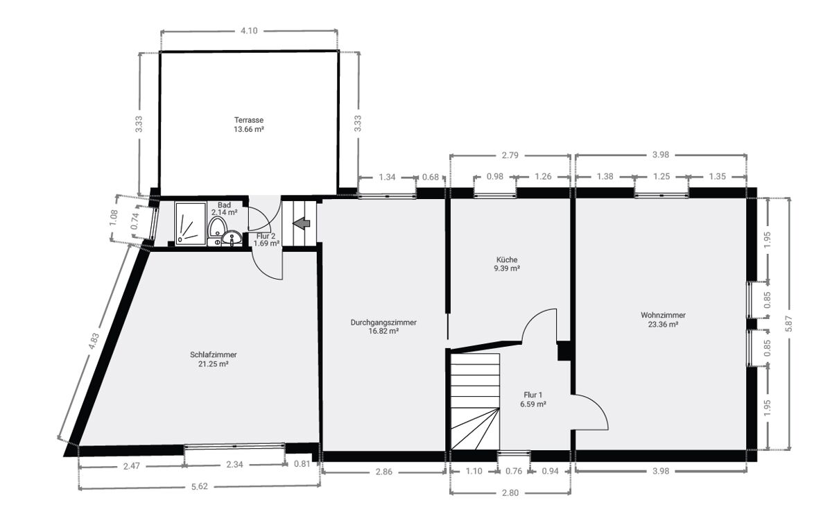
    Vom Eingangsbereich aus führt der Zugang links in das Haupthaus. Auf der ersten Ebene befinden sich ein Schlafzimmer sowie ein Badezimmer mit Badewanne. Über die Treppe erreichen Sie das erste Obergeschoss. Hier stehen Ihnen ein weiteres Zimmer, nutzbar als Schlaf- oder Wohnzimmer, eine großzügige Küche mit Einbauküche sowie ein praktisches Übergangszimmer zur Verfügung.

    Über wenige zusätzliche Stufen gelangen Sie auf die attraktive, überdachte Dachterrasse mit schönem Blick über den Ort – ein idealer Platz zum Entspannen. Auf dieser Ebene befinden sich außerdem ein Duschbad mit WC sowie ein weiteres Zimmer, das flexibel genutzt werden kann. Zusätzlichen Stauraum bietet der Spitzboden, der über eine Einschubtreppe im Obergeschoss erreichbar ist.

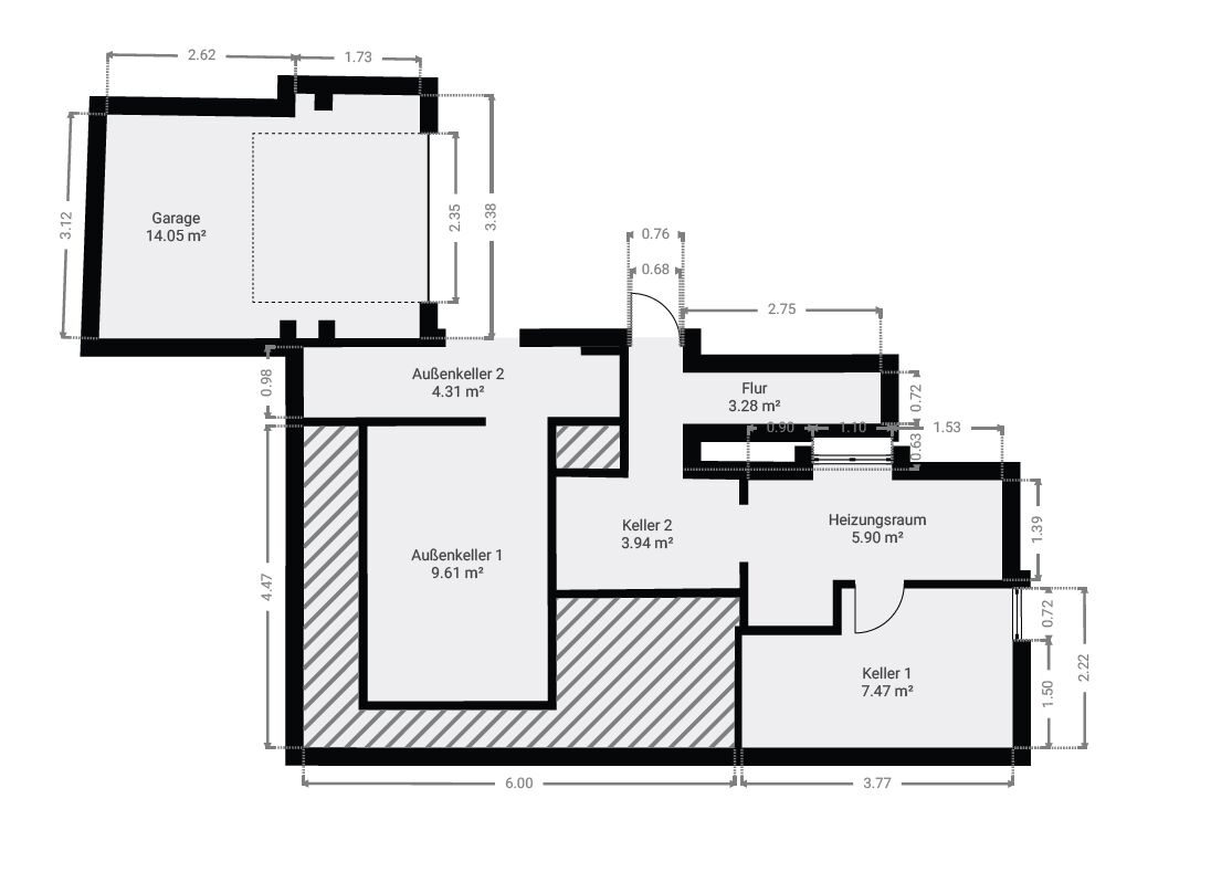
    Im Hof stehen Ihnen ein Stellplatz sowie eine Garage zur Verfügung. Der teilweise zum Hof hin offene Kellerbereich bietet Platz für Mülltonnen und beherbergt zudem den Heizungsraum mit Gaszentralheizung.

  • Flächen

    • Wohnfläche:
      163,99 m²
    • Grundstücksfläche:
      205 m²
    • Nutzfläche:
      51,18 m²
    • Wohneinheiten:
      2.00
    • Zimmer insgesamt:
      6
    • Schlafzimmer:
      4
    • Badezimmer:
      3
    • Separate WCs:
      1
    • Etagen:
      2
    • Balkone:
      1
    • Terrassen:
      1

    Zustand & Erschließung

    • Baujahr:
      1959
    • Keller:
      voll unterkellert
  • Die Fassade des Fachwerkhauses mit massivem Anbau hat 2013 einen Vollwärmeschutz bekommen. Das Haus wurde in 2013-2014 Kernsaniert inkl. Elektrik, Dach und Heizung. Die Kunststoff-Isolierglasfenster wurden in 2004 eingebaut.

    Diese Immobilie überzeugt durch ihre flexible Raumaufteilung, mehrere Außenbereiche (Garten, Terrasse, Balkon, Dachterrasse) sowie praktische Nebenflächen – ideal für Familien, Mehrgenerationenwohnen oder zur Kombination von Eigennutzung und Vermietung.

    • Heizungsart:
      Zentralheizung
    • Befeuerung:
      Gas
    • Bodenbelag:
      Fliesen, Laminat
    • Energieausweis-Art:
      Bedarf
    • Energieausweis gültig bis:
      26.02.2036
    • Endenergiebedarf:
      152,60 kWh/(m²*a)
    • Primärenergieträger:
      Gas
    • Energieeffizienzklasse:
      E
    • Baujahr (Energieausweis):
      1959
    • Energieausweis-Jahrgang:
      ab Mai 2014
    • Energieausweis-Gebäudeart:
      Wohngebäude

  • Im Hintertaunus gelegen und doch so nah zum Rest der Welt – so kann man Neu-Anspach sehen. Nur auf kurzem Weg über die Saalburg, vorbei am alten Römerkastell nach Bad Homburg, erreicht man nach ca. 35 Kilometern Fahrt Frankfurt. Hier leben viele junge Paare, Familien und Senioren, die genau das und gleichzeitig die Nähe zu den Großstädten schätzen.

    Die A661 ist ca. 13 Kilometer, die A5 ca. 15 Kilometer und der Flughafen Frankfurt ist in ca. 35 Kilometern erreichbar. Über die RMV-Linien 5 (über Friedrichsdorf) und 15 (Taunusbahn) werden die umliegenden Stadtteile und Gemeinden sowie Frankfurt erreicht. Eine Park & Ride Möglichkeit finden Sie direkt am Bahnhof. Auf dem Flugplatz Neu-Anspach können Flugzeuge bis 2.000 kg und Hubschrauber bis 5.700 kg starten und landen.

    Für den „täglichen Bedarf“ finden Sie im Innenstadtbereich und in den Stadtteilen Supermärkte, Apotheken, Restaurants und Gaststätten. Das Einzelhandelsangebot reicht von Bekleidung über Raumbedarf bis hin zu Produkten des regionalen Anbaus.

    Das schulische Angebot beinhaltet zwei Grundschulen und eine Gesamtschule. Vielfältige Kinderbetreuungsangebote können genutzt werden.

    Neu-Anspach ist idealer Ausgangspunkt, um den Taunus zu erkunden. Und das ganz ohne Auto. Sie lieben Aktivitäten rund um Wandern, Radfahren, Joggen, Reiten oder Skilanglauf in einer der schönsten Mittelgebirgsregionen Deutschlands? Sie beginnen hier vor der Haustür. Unerlässlich ist auch ein Besuch im Freilichtmuseum Hessenpark. Original wieder aufgebaute Fachwerkgebäude bieten Einblicke in das Leben und Arbeiten der Menschen der letzten 400 Jahre.

    • Kaufpreis:
      450.000 €
    • Käuferprovision:
      3,57% inkl. MwSt.
    • Hinweis zur Courtage:
      Wir haben einen provisionspflichtigen Maklervertrag mit dem Verkäufer in gleicher Höhe abgeschlossen.
    • MwSt.-Satz:
      19 %

Kein passendes Angebot gefunden?

Registrieren Sie sich in unserer Interessentendatei und geben Sie Ihre Wunschimmobilie an. Wir informieren Sie noch vor Veröffentlichung, sobald wir ein passendes Objekt in unserem Angebot haben.

Bitte aktivieren Sie JavaScript in Ihrem Browser, um dieses Formular fertigzustellen.
1Schritt 1
2Schritt 2
3Schritt 3
Ich interessiere mich für…