Wohnimmobilie > Haus
Zu Verkaufen

Besondere Investitionsmöglichkeit in Nieder-Eschbach mit Entwicklungspotenzial!

60437 Frankfurt am Main / Nieder-Eschbach

1.650.000 €


12201

1969

90 m²

1.066 m²

23

Ihr Ansprechpartner bei uns

Vladimir Hamin










Sicher!  

Alle Informationen auf einen Blick

  • Sie sind auf der Suche nach einer renditestarken Kapitalanlage mit Entwicklungsmöglichkeiten? Dann möchten wir Ihnen zwei spannende Objekte vorstellen, die gemeinsam auf einem ca. 1.066 m² großen Grundstück in attraktiver Lage stehen.

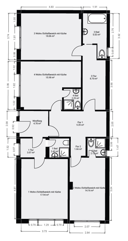
    Das erste Objekt ist ein ehemaliges Hotel mit angeschlossener Gaststätte und Küche aus dem Baujahr 1969. Auf ca. 454 m² Gewerbefläche und zusätzlichen ca. 153 m² Nutzfläche bietet diese Immobilie vielfältige Nutzungsmöglichkeiten. Derzeit sind einzelne Zimmer bereits mit Langzeitmietverträgen vermietet – ein solides Fundament für Ihre Mieteinnahmen.

    Ergänzt wird das Ensemble durch ein zweites Gebäude: ein charmant umgebauter Bungalow, der ursprünglich als Scheune im Jahr 1940 errichtet und 1969 in Wohnraum umgewandelt wurde. Hier stehen Ihnen 90 m² Wohnfläche sowie 16 m² Nutzfläche zur Verfügung. Auch in diesem Haus sind die Zimmer einzeln vermietet – ebenfalls mit langfristigen Mietverhältnissen.

    Beide Immobilien befinden sich in einem renovierungs- bzw. sanierungsbedürftigen Zustand, bieten Ihnen jedoch damit auch die Chance, den Wert deutlich zu steigern. Zur Ausstattung gehören zudem drei Garagen und zehn Stellplätze – ein klares Plus für Mieter und Besucher.

    Die aktuellen Mieteinnahmen belaufen sich auf 125.800 € (Bruttomiete) jährlich. Bei Vollvermietung wäre sogar ein jährlicher Ertrag von bis zu 148.800 € möglich – eine attraktive Rendite, die Sie durch gezielte Investitionen noch weiter optimieren können.

    Ob als langfristige Kapitalanlage oder zur schrittweisen Aufwertung mit Entwicklungspotenzial: Dieses Immobilienpaket bietet Ihnen Raum für Ihre Ideen – und die Möglichkeit, von Anfang an stabile Einnahmen zu generieren.

    Wir freuen uns darauf, Ihnen die Objekte persönlich vorstellen zu dürfen!

  • Flächen

    • Wohnfläche:
      90 m²
    • Grundstücksfläche:
      1.066 m²
    • Nutzfläche:
      169 m²
    • Vermietbare Fläche:
      544 m²
    • Wohneinheiten:
      23.00
    • Zimmer insgesamt:
      23
    • Stellplätze:
      13
    • Außenstellplätze:
      10
    • Garagenstellplätze:
      3

    Zustand & Erschließung

    • Baujahr:
      1969
    • Energieausweis-Art:
      Verbrauch
    • Energieausweis gültig bis:
      20.03.2035
    • Energieverbrauchskennwert:
      218,60 kWh/(m²*a)
    • Primärenergieträger:
      Gas
    • Energieeffizienzklasse:
      G
    • Baujahr (Energieausweis):
      1969
    • Energieausweis-Jahrgang:
      ab Mai 2014
    • Energieausweis-Gebäudeart:
      Wohngebäude

  • Der liebenswerte Stadtteil im Norden Frankfurts hat sich seinen dörflichen Charakter noch bewahrt. Rings um das Siedlungsgebiet liegen große landwirtschaftlich genutzte Flächen, auf denen insbesondere Gemüse angebaut wird.

    Nieder-Eschbach liegt östlich des Bad Homburger Kreuzes im rechten Winkel zwischen den Bundesautobahnen 5 und 661 und wird durch diese begrenzt. Der Stadtteil ist über den RMV an das Netz der Frankfurter U-Bahn angebunden. So können Sie schnelle Verbindungen in alle Stadtteile, ins Umland und in das Frankfurter Stadtzentrum nutzen.

    Für den „täglichen Bedarf“ stehen Ihnen Supermärkte, Apotheken, Restaurants und Gaststätten zur Verfügung. Das Einzelhandelsangebot reicht von Bekleidung über Raumbedarf bis hin zu Obst und Eiern vom Bauern an der Ecke.

    Das schulische Angebot bietet Ihnen eine Grundschule sowie eine kooperative Gesamtschule. Vielfältige Kinderbetreuungsmöglichkeiten können genutzt werden.

    Für Ihre Freizeitgestaltung können Sie wählen zwischen der „Natur vor der Haustür“ und vielfältigen Sport-, Kunst- und Kulturvereinen.

    • Kaufpreis:
      1.650.000 €
    • Käuferprovision:
      5,95% inkl. MwSt.
    • MwSt.-Satz:
      19 %
    • X-fache (Kaufpreis bez. auf Jahresmiete):
      13.17
    • Soll-Mieteinnahmen/Jahr:
      148.800 €

Kein passendes Angebot gefunden?

Registrieren Sie sich in unserer Interessentendatei und geben Sie Ihre Wunschimmobilie an. Wir informieren Sie noch vor Veröffentlichung, sobald wir ein passendes Objekt in unserem Angebot haben.

Bitte aktivieren Sie JavaScript in Ihrem Browser, um dieses Formular fertigzustellen.
1Schritt 1
2Schritt 2
3Schritt 3
Ich interessiere mich für…