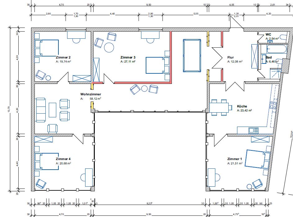
Die Wohnung verfügt über rund 200 m² Wohnfläche und insgesamt fünf Zimmer. Vier davon sind vollwertige, separat begehbare Räume und eignen sich flexibel als Schlaf-, Arbeits- oder Gästezimmer. Ergänzt wird das Raumangebot durch einen länglichen, offen gestalteten Bereich, der Wohn- und Flurzone miteinander verbindet und ein großzügiges Raumgefühl schafft.
Der große Eingangsbereich bietet ausreichend Platz für eine Garderobe. Die separate Küche ist klar vom Wohnbereich getrennt und über eine dekorative Rundbogentür erreichbar, die dem Grundriss einen besonderen architektonischen Akzent verleiht.
Das Badezimmer ist zeitlos in Weiß gehalten und mit Dusche sowie Badewanne ausgestattet. Es präsentiert sich gepflegt und neutral. Zusätzlich steht ein separates Gäste-WC zur Verfügung.
Ein weiteres Highlight ist die Dachterrasse, die teilweise überdacht ist und zusätzlichen Außenraum bietet. Von hier sowie von den rückwärtigen Räumen blickt man in Richtung Innenhof. Zur Vorderseite hin sorgt eine große Fensterfront für viel Tageslicht und einen offenen Blick auf die Einkaufspassage.
Durch ihre großzügige Fläche, die klare Raumaufteilung und die zentrale Lage handelt es sich um eine exklusive Wohnung, die sich ideal für Familien, Paare mit Homeoffice-Bedarf oder eine kombinierte Wohn- und Büronutzung eignet.
Die Wohnung wurde Ende 2025 umfassend renoviert.
Die Fenster wurden bereits 2018 ausgetauscht. Rollläden sind nicht vorhanden.
Ein Kellerabteil oder Stellplatz gehört nicht zur Wohnung.
In den nahegelegenen Parkhäusern besteht jedoch die Möglichkeit, Dauerparkplätze anzumieten.
5 Zimmer, davon 4 separat begehbare Räume
Offener Wohn-/Flurbereich
Separate Küche mit dekorativer Rundbogentür
Großzügiger Eingangsbereich mit Garderobenfläche
Badezimmer mit Badewanne und Dusche
Separates Gäste-WC
Dachterrasse, teilweise überdacht
Große Fensterfront
Offenbach ist die fünftgrößte Stadt Hessens und grenzt im Norden direkt an Frankfurt. Das verbindende Element ist der Main. Bekannteste Einrichtung der Stadt ist sicherlich die Zentrale des Deutschen Wetterdienstes.
Offenbach liegt an der A5. Den internationalen Flughafen Frankfurt erreichen Sie in ca. 19 Kilometern. Die RMV-Linien S1, S2, S8 und S9 (Bahnhof Offenbach-Ost) schaffen schnelle Verbindung in die Stadtteile und nach Frankfurt.
Für den „täglichen Bedarf“ finden Sie im Innenstadtbereich und in den Stadtteilen Supermärkte, Apotheken, Restaurants und Gaststätten. Das Einzelhandelsangebot reicht von Bekleidung über Raumbedarf bis hin zu Produkten des regionalen Anbaus.
Das schulische Angebot beinhaltet Grundschulen, Haupt- und Realschulen mit Förderstufe, allgemeinbildendes Gymnasium und eine berufliche Schule. Vielfältige Kinderbetreuungsangebote können genutzt werden.
Das Freizeitangebot erstreckt sich von der „Natur vor der Tür“ bis hin zu vielfältigen Sport-, Kunst- und Kulturvereinen.
Registrieren Sie sich in unserer Interessentendatei und geben Sie Ihre Wunschimmobilie an. Wir informieren Sie noch vor Veröffentlichung, sobald wir ein passendes Objekt in unserem Angebot haben.