Wohnimmobilie > Reihenmittelhaus
Zu Verkaufen

Attraktives Reihenmittelhaus in Offenbach-Bieber – ideal für Familien!

63073 Offenbach / Bieber

535.000 €


12056

1974

148 m²

160 m²

6

Ihr Ansprechpartner bei uns

Timo Wanik










Sicher!  

Alle Informationen auf einen Blick

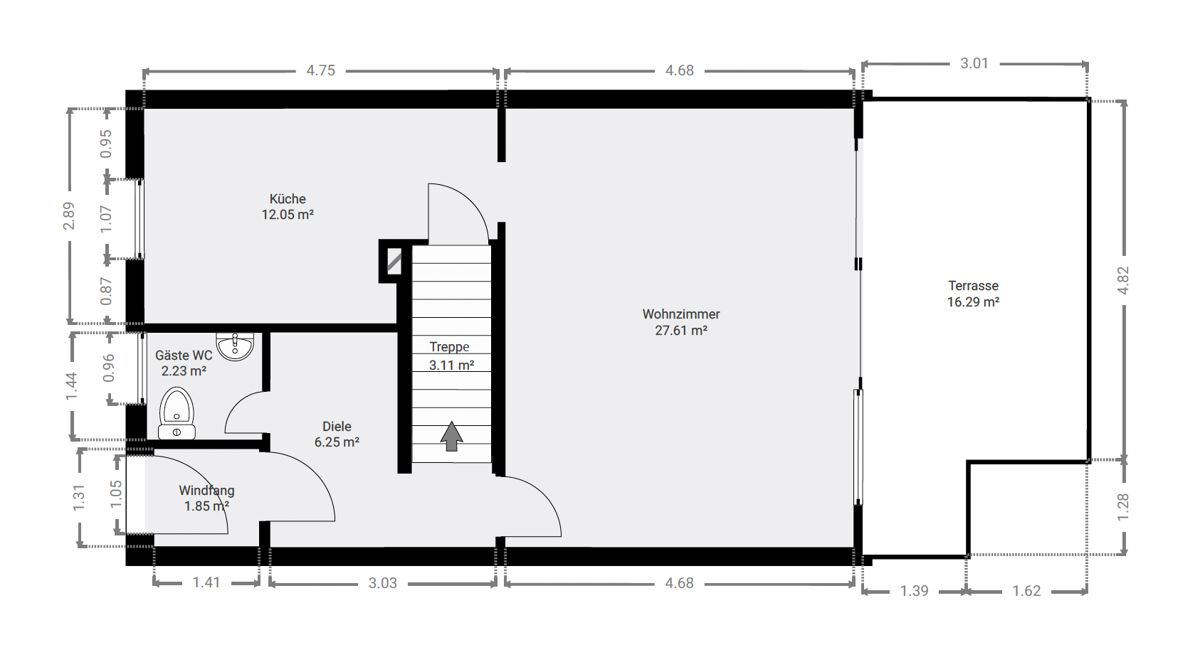
  • In ruhiger Lage von Offenbach-Bieber befindet sich dieses gepflegte Reihenmittelhaus mit einer Wohnfläche von ca. 148 m² auf einem ca. 160 m² großen Grundstück. Das Haus erstreckt sich über drei Etagen und bietet ausreichend Platz für Familien oder Paare mit erhöhtem Raumbedarf. Im Erdgeschoss befindet sich ein großzügiges Wohnzimmer mit Zugang zur schönen Terrasse und dem kleinen, pflegeleichten Garten. Die offene Gestaltung schafft eine angenehme Wohnatmosphäre und lädt zum Verweilen ein.
    Ein Gäste-WC ist ebenfalls im Erdgeschoss vorhanden. Im Obergeschoss befindet sich ein Tageslichtbad mit Dusche und Badewanne sowie weitere Wohnräume. Das Dachgeschoss wurde vollständig ausgebaut und bietet zwei flexibel nutzbare Zimmer, die sich ideal als Schlafzimmer, Büro oder Hobbyräume eignen.

    Das Haus ist mit einer modernen Gasheizung ausgestattet, die im Jahr 2022 erneuert wurde. Eine Zisterne zur Regenwassernutzung ist ebenfalls vorhanden. Insgesamt befindet sich die Immobilie in einem guten Zustand und eignet sich ideal als langfristiges Zuhause in einer beliebten Wohnlage mit guter Infrastruktur und Anbindung.

  • Flächen

    • Wohnfläche:
      148 m²
    • Grundstücksfläche:
      160 m²
    • Nutzfläche:
      56 m²
    • Zimmer insgesamt:
      6
    • Schlafzimmer:
      5
    • Badezimmer:
      1
    • Balkone:
      1
    • Terrassen:
      1

    Zustand & Erschließung

    • Baujahr:
      1974
    • Keller:
      voll unterkellert
    • Heizungsart:
      Zentralheizung
    • Befeuerung:
      Gas
    • Energieausweis-Art:
      Bedarf
    • Energieausweis gültig bis:
      06.08.2035
    • Endenergiebedarf:
      147,70 kWh/(m²*a)
    • Primärenergieträger:
      Gas
    • Energieeffizienzklasse:
      E
    • Baujahr (Energieausweis):
      1974
    • Energieausweis-Jahrgang:
      ab Mai 2014
    • Energieausweis-Gebäudeart:
      Wohngebäude

  • Bieber ist ein ruhig gelegener Stadtteil der südhessischen Stadt Offenbach am Main und liegt an dem Bach Bieber, einem Nebenfluss der Rodau.

    Über die Bundesstraße 448 gibt es eine schnelle Anbindung an die Bundesstraße 45 und die Bundesautobahn 3. Bieber liegt in der Nähe des Frankfurter Flughafens, des Frankfurter Autobahnkreuzes sowie des Frankfurter Hauptbahnhofes und hat dadurch gute überregionale Verkehrsverbindungen. Die RMV-Linien S1 und S2 schaffen schnelle Verbindung in die Stadtteile.

    Für den „täglichen Bedarf“ stehen Ihnen Supermärkte, Apotheken, Restaurants und Gaststätten zur Verfügung.

    Das schulische Angebot bietet zwei Grundschulen, eine private Grund-, Haupt- und Realschule und eine integrierte Gesamtschule in näherer Umgebung. Vielfältige Kinderbetreuungsangebote können genutzt werden.

    Das Freizeitangebot erstreckt sich von der „Natur vor der Tür“ bis hin zu vielfältigen Sport-, Kunst- und Kulturvereinen. Der nahegelegene Wetterpark und der Abenteuerpark Fun-Forest laden zu Ausflügen ins Grüne ein.

    • Kaufpreis:
      535.000 €
    • Käuferprovision:
      3,57% inkl. MwSt.
    • Hinweis zur Courtage:
      Wir haben einen provisionspflichtigen Maklervertrag mit dem Verkäufer in gleicher Höhe abgeschlossen.
    • MwSt.-Satz:
      19 %

Kein passendes Angebot gefunden?

Registrieren Sie sich in unserer Interessentendatei und geben Sie Ihre Wunschimmobilie an. Wir informieren Sie noch vor Veröffentlichung, sobald wir ein passendes Objekt in unserem Angebot haben.

Bitte aktivieren Sie JavaScript in Ihrem Browser, um dieses Formular fertigzustellen.
1Schritt 1
2Schritt 2
3Schritt 3
Ich interessiere mich für…