Wohnimmobilie > Bungalow
Zu Verkaufen

Attraktiver Bungalow in begehrter Wohnlage von Usingen!

61250 Usingen

655.000 €


12268

1968

125 m²

803 m²

4

Ihr Ansprechpartner bei uns

Gerhard Steinbacher










Sicher!  

Alle Informationen auf einen Blick

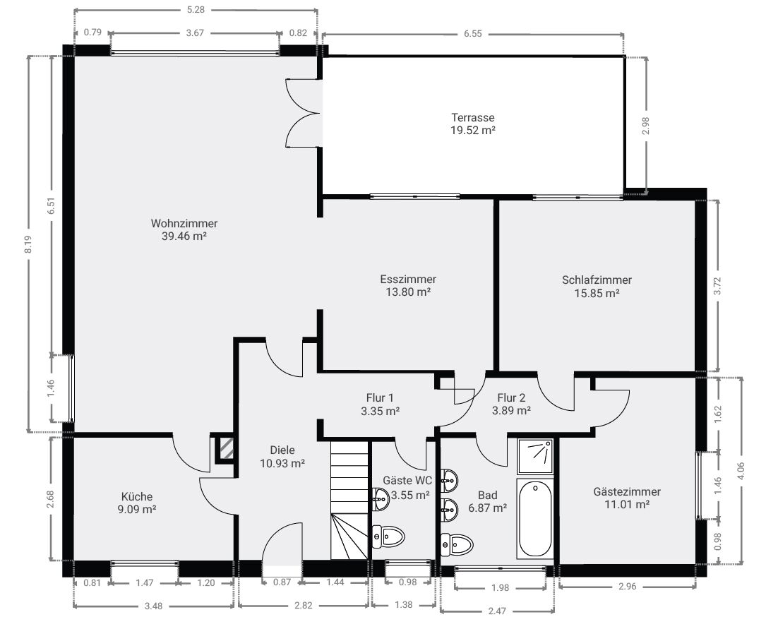
  • Dieser gepflegte Bungalow befindet sich in einer bevorzugten und ruhigen Wohnlage von Usingen. Zum Haus gehören eine praktische Einzelgarage sowie ein zusätzlicher Außenstellplatz.

    Bereits die großzügige Eingangsdiele bietet ausreichend Platz für eine Garderobe und führt Sie zu einem Gäste-WC. Von hier aus gelangen Sie in die separate Küche, in das angrenzende Esszimmer sowie in den weitläufigen Wohnbereich. Ein beeindruckendes Panoramafenster eröffnet Ihnen einen herrlichen Blick in den Garten und auf den Taunus. Vom Wohnzimmer aus betreten Sie die überdachte Terrasse, die nahtlos in den liebevoll angelegten Garten übergeht – ideal für entspannte Stunden im Freien.

    Im Erdgeschoss stehen Ihnen zudem zwei gut geschnittene Schlafzimmer sowie ein Tageslichtbad zur Verfügung, das ausreichend Platz für eine Badewanne, eine Dusche und zwei Waschbecken bietet.

    Das Untergeschoss überrascht mit einem vielseitig nutzbaren Hobby- oder Gästezimmer, das über ein eigenes Duschbad verfügt. Ergänzt wird die Etage durch den Heizungsraum, einen großzügigen Waschraum mit Platz für Waschmaschine und Trockner sowie mehrere Abstellräume. Auch der Einbau einer Sauna ist hier problemlos möglich.

    Der Spitzboden bietet zusätzlichen Stauraum und erweitert damit die vielseitigen Nutzungsmöglichkeiten des Hauses.

  • Flächen

    • Wohnfläche:
      125,43 m²
    • Grundstücksfläche:
      803 m²
    • Nutzfläche:
      107,53 m²
    • Wohneinheiten:
      1.00
    • Zimmer insgesamt:
      4
    • Schlafzimmer:
      3
    • Badezimmer:
      2
    • Separate WCs:
      1
    • Etagen:
      1
    • Stellplätze:
      2
    • Außenstellplätze:
      1
    • Garagenstellplätze:
      1
    • Terrassen:
      1

    Zustand & Erschließung

    • Baujahr:
      1968
    • Zustand:
      gepflegt
    • Bauweise:
      Massiv
    • Keller:
      voll unterkellert
    • Heizungsart:
      Zentralheizung
    • Befeuerung:
      Öl
    • Bodenbelag:
      Fliesen, Parkett
    • Energieausweis-Art:
      Bedarf
    • Energieausweis gültig bis:
      17.11.2035
    • Endenergiebedarf:
      206,60 kWh/(m²*a)
    • Primärenergieträger:
      Öl
    • Energieeffizienzklasse:
      G
    • Baujahr (Energieausweis):
      1968
    • Energieausweis-Jahrgang:
      ab Mai 2014
    • Energieausweis-Gebäudeart:
      Wohngebäude

  • Usingen liegt inmitten der Urlaubsregion Hochtaunus. Als ehemalige Residenz- und Kreisstadt kann sie auf eine über 1.200-jährige Historie zurückblicken. Die vielen wunderschönen Fachwerkhäuser und historischen Gebäude bieten eine reizvolle Kulisse. Bereits von Weitem ist das Wahrzeichen der Stadt, die Laurentiuskirche zu erkennen.

    In ca. 35 Kilometern erreichen Sie Frankfurt. Die A3 und die A5 erreichen Sie in ca. 22 Kilometern, den internationalen Flughafen Frankfurt in ca. 45 Kilometern. Mit den RMV-Linien 5 (über Friedrichsdorf) und 15 (Taunusbahn) erreichen Sie die umliegenden Gemeinden und Frankfurt. Park & Ride Möglichkeiten finden Sie direkt an den Bahnhöfen.

    Für den „täglichen Bedarf“ finden Sie im Innenstadtbereich und in den Stadtteilen Supermärkte, Apotheken, Restaurants und Gaststätten. Das Einzelhandelsangebot reicht von Bekleidung über Raumbedarf bis hin zu Produkten des regionalen Anbaus.

    Das schulische Angebot beinhaltet zwei Grundschulen, eine Haupt- und Realschule, ein allgemeinbildendes Gymnasium und eine berufliche Schule. Vielfältige Kinderbetreuungsangebote können genutzt werden.

    Von Usingen aus sind Sie schnell im Grünen. Eine besondere Attraktion oberhalb des Stadtteils Eschbach sind die Eschbacher Klippen. Schnell zu erreichen sind beispielsweise das Römerkastell Saalburg, der Freizeitpark Lochmühle in Wehrheim oder der Vogelpark Hochtaunus in Weilrod. Aber auch der Feldberg oder die Städte Bad Homburg und Frankfurt sind einen Tagesausflug wert.

    • Kaufpreis:
      655.000 €
    • Käuferprovision:
      3,57% inkl. MwSt.
    • Hinweis zur Courtage:
      Wir haben einen provisionspflichtigen Maklervertrag mit dem Verkäufer in gleicher Höhe abgeschlossen.
    • MwSt.-Satz:
      19 %

Kein passendes Angebot gefunden?

Registrieren Sie sich in unserer Interessentendatei und geben Sie Ihre Wunschimmobilie an. Wir informieren Sie noch vor Veröffentlichung, sobald wir ein passendes Objekt in unserem Angebot haben.

Bitte aktivieren Sie JavaScript in Ihrem Browser, um dieses Formular fertigzustellen.
1Schritt 1
2Schritt 2
3Schritt 3
Ich interessiere mich für…