Wohnimmobilie > Zweifamilienhaus
Zu Verkaufen

2FH mit Hof und Nebengebäude – Mitten in Usingen!

61250 Usingen

295.000 €


12324

1969

118 m²

243 m²

4

Ihr Ansprechpartner bei uns

Gerhard Steinbacher










Sicher!  

Alle Informationen auf einen Blick

  • Dieses vermietete Zweifamilienhaus befindet sich in direkter Lage von Usingen, in einem gewachsenen und ruhigen Wohnumfeld. Die Halle oder Werkstatt kann direkt genutzt werden.

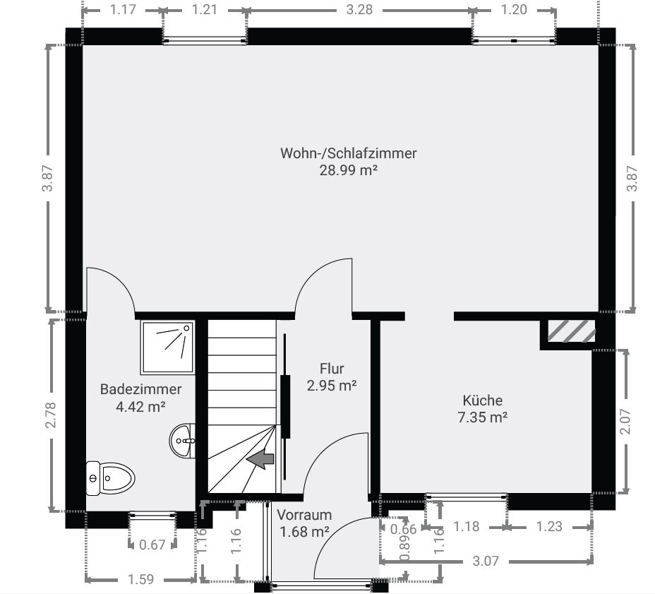
    Im Erdgeschoss befindet sich eine großzügig geschnittene Wohneinheit mit einem weitläufigen Wohn- und Schlafbereich, der sich über die gesamte Hauslänge erstreckt. Ergänzt wird das Raumangebot durch eine separate Küche sowie ein Duschbad mit Anschlussmöglichkeiten für Waschmaschine und Trockner. Ein eigener Kellerraum bietet zusätzliche Abstellfläche.

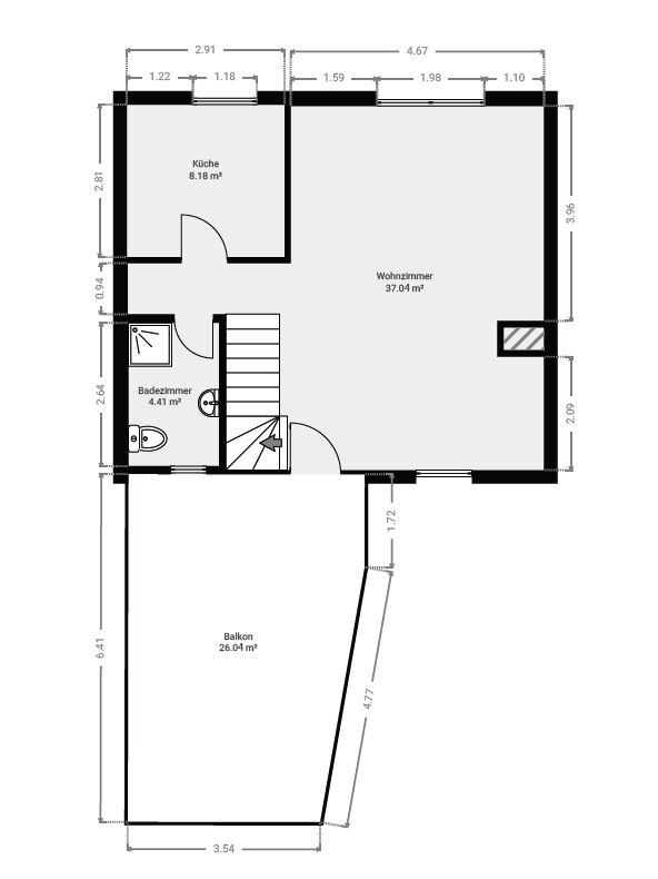
    Die zweite Wohneinheit erstreckt sich über das Ober- und Dachgeschoss und bietet eine 3-Zimmer-Aufteilung mit zwei Bädern. Auf der ersten Ebene erwartet Sie ein großzügiger Wohn- und Essbereich mit direktem Zugang zur weitläufigen Dachterrasse – ideal für entspannte Stunden im Freien. Eine separate Küche sowie ein Badezimmer mit Dusche und Waschmaschinenanschluss runden diese Etage ab.

    Im Dachgeschoss stehen zwei weitere Zimmer sowie ein zusätzliches Badezimmer mit Badewanne zur Verfügung. Auch dieser Wohnung ist ein separater Kellerraum zugeordnet.

    Der Innenhof bietet Platz für drei bis vier Pkw-Stellplätze. Zusätzlich befindet sich auf dem Grundstück ein Nebengebäude, das sich hervorragend als Lagerfläche oder kleine Werkstatt nutzen lässt.

    Das Haus ist mit Aluminium-Isolierglasfenstern ausgestattet.

  • Flächen

    • Wohnfläche:
      118,4 m²
    • Grundstücksfläche:
      243 m²
    • Nutzfläche:
      116,32 m²
    • Wohneinheiten:
      2.00
    • Gewerbeeinheiten:
      1.00
    • Zimmer insgesamt:
      4
    • Schlafzimmer:
      3
    • Badezimmer:
      2
    • Etagen:
      2
    • Stellplätze:
      3
    • Außenstellplätze:
      3
    • Balkone:
      1

    Zustand & Erschließung

    • Baujahr:
      1969
    • Bauweise:
      Massiv
    • Keller:
      voll unterkellert
    • Heizungsart:
      Zentralheizung
    • Befeuerung:
      Gas
    • Bodenbelag:
      Fliesen, Laminat
    • Energieausweis-Art:
      Bedarf
    • Energieausweis gültig bis:
      27.01.2036
    • Endenergiebedarf:
      204,20 kWh/(m²*a)
    • Primärenergieträger:
      Gas
    • Energieeffizienzklasse:
      G
    • Baujahr (Energieausweis):
      1969
    • Energieausweis-Jahrgang:
      ab Mai 2014
    • Energieausweis-Gebäudeart:
      Wohngebäude

  • Usingen liegt inmitten der Urlaubsregion Hochtaunus. Als ehemalige Residenz- und Kreisstadt kann sie auf eine über 1.200-jährige Historie zurückblicken. Die vielen wunderschönen Fachwerkhäuser und historischen Gebäude bieten eine reizvolle Kulisse. Bereits von Weitem ist das Wahrzeichen der Stadt, die Laurentiuskirche zu erkennen.

    In ca. 35 Kilometern erreichen Sie Frankfurt. Die A3 und die A5 erreichen Sie in ca. 22 Kilometern, den internationalen Flughafen Frankfurt in ca. 45 Kilometern. Mit den RMV-Linien 5 (über Friedrichsdorf) und 15 (Taunusbahn) erreichen Sie die umliegenden Gemeinden und Frankfurt. Park & Ride Möglichkeiten finden Sie direkt an den Bahnhöfen.

    Für den „täglichen Bedarf“ finden Sie im Innenstadtbereich und in den Stadtteilen Supermärkte, Apotheken, Restaurants und Gaststätten. Das Einzelhandelsangebot reicht von Bekleidung über Raumbedarf bis hin zu Produkten des regionalen Anbaus.

    Das schulische Angebot beinhaltet zwei Grundschulen, eine Haupt- und Realschule, ein allgemeinbildendes Gymnasium und eine berufliche Schule. Vielfältige Kinderbetreuungsangebote können genutzt werden.

    Von Usingen aus sind Sie schnell im Grünen. Eine besondere Attraktion oberhalb des Stadtteils Eschbach sind die Eschbacher Klippen. Schnell zu erreichen sind beispielsweise das Römerkastell Saalburg, der Freizeitpark Lochmühle in Wehrheim oder der Vogelpark Hochtaunus in Weilrod. Aber auch der Feldberg oder die Städte Bad Homburg und Frankfurt sind einen Tagesausflug wert.

    • Kaufpreis:
      295.000 €
    • Käuferprovision:
      3,57% inkl. MwSt.
    • Hinweis zur Courtage:
      Wir haben einen provisionspflichtigen Maklervertrag mit dem Verkäufer in gleicher Höhe abgeschlossen.
    • MwSt.-Satz:
      19 %
    • Soll-Mieteinnahmen/Jahr:
      11.640 €

Kein passendes Angebot gefunden?

Registrieren Sie sich in unserer Interessentendatei und geben Sie Ihre Wunschimmobilie an. Wir informieren Sie noch vor Veröffentlichung, sobald wir ein passendes Objekt in unserem Angebot haben.

Bitte aktivieren Sie JavaScript in Ihrem Browser, um dieses Formular fertigzustellen.
1Schritt 1
2Schritt 2
3Schritt 3
Ich interessiere mich für…